منتديات للبناء فنون

منتديات للبناء فنون (http://www.llbf.com.sa/vb/index.php)
-   المخططات المعمارية (http://www.llbf.com.sa/vb/forumdisplay.php?f=20)
-   -   طلب استشارة اخواني في التصميم (نتاج 6 اشهور تفكير و عمل ) الله يجزاكم خير (http://www.llbf.com.sa/vb/showthread.php?t=404)

أديم 12-10-2010 01:04 AM

اهلا بك

وانا من يومين أعدل بالمخطط..

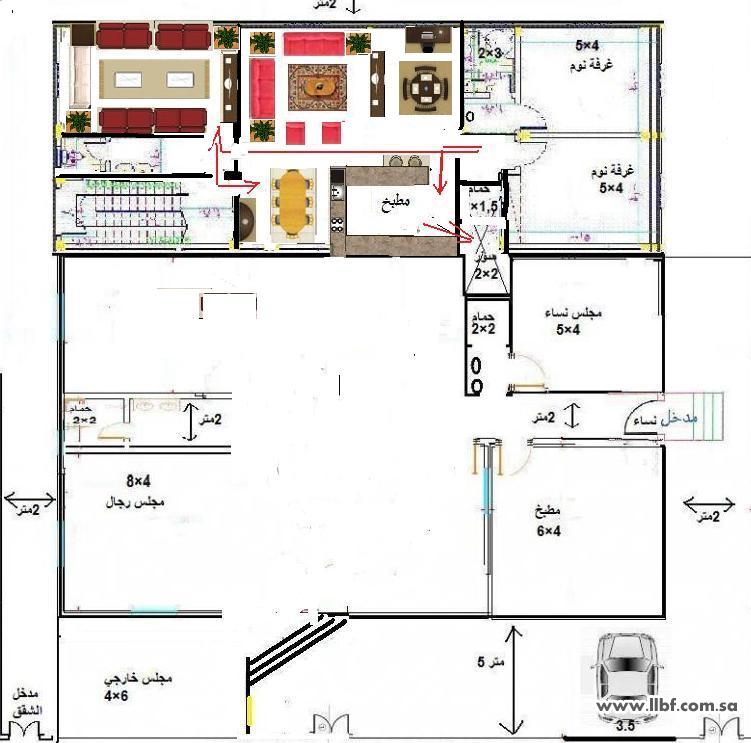
عدلته بالرسام أتمنى يعجبك..ولو فيه أي نسيان مني أو ملاحظة قد نحاول تعديلها معا

استبدلت المنور بباب نافذ ..بالنسبة للشقة

وكذلك فكرة المجلس الخارجي وحمامه وذلك بدمجه مع المنزل..

لأنه من وجهة نظري افضل واجمل ..وايضا مريح وعملي

اللون الأصفر هي النوافذ..حاول أن تمتد الى الأرض خاصة للشقق وذلك للتهويه واعطاء نوع من الرحابة

والأحمر هي الابواب

بعض القياسات تركتها مفتوحة لك كي تحددها كما ترغب

نعتذر عن التأخر


http://www.llbf.com.sa/uploads/download.php?img=1607

essa_net 12-11-2010 07:31 PM

أخي العزيز الغالي مشرفنا ((أديم ))
اشكرك من اعماق قلبي
اسأل الله ان يبارك لك في جهودك ويرزقك من حيث لا تحتسب
يعلم الله اني كم فرحت وادخل السرور على قلبي على تعديلاتك في المخطط
وبالفعل جميعها تعديلات في مكانها وسوف اعتمدها بشكل نهائي وسوف اقدمها للمكتب لكي يخرجها بشكل هندسي وارفعها للمنتدى مرة اخرى لكي يستفيد منها الاخوان .
____________________

همسة ( كل لما اريد ان اضفط على زر إضافة الرد اتردد واقول انني لم اوفي لك حقك ولكن ياغالي يعلم الله انني من وقعت عيني على التصميم وانا اتمتم بدعوات لك في ظهر الغيب أسال الله ان يستجيب لها )

essa_net 12-13-2010 08:17 PM

مشرفنا الغالي أديم ( أدام الله عليك الصحة والعافية )

لقد عدلت بالمخطط جميع الملاحظات التي أهديتني أيها

وش رايك فيها بعد التعديل إذا لك ملاحظة أو تعديل أخر الله لا يحرمك الجنه

http://llbf.com.sa/vb/attachment.php...1&d=1292259135

ماجد المحيميد 12-13-2010 09:02 PM


هلا بك

أخي الكريم

أعتذر من الله ثم من شخصك الكريم على التأخر

الغير مبرر :)

المخطط يحتاج إلى شيء من إعادة الصياغة ما أخفيك حاولت أعدل شيء لكن للأسف ما استطعت ومع هذا كله أقول لك فيه شيء مفقود

أتمنى فضلاً لا أمراً التواصل مع أحد المكاتب الهندسية لعمل المخطط وبعد ذلك عرض المخطط المبدئي هنا وأبشر بعزك

المكتب الهندسي سيقوم بإعدادالرسومات بشكل هندسي ودقيق وسيتغير معه شيء ربما يضيف للمخطط ويسهم في وضوح الصورة للجميع مما يسهل عملية النصح لما يرغب في إبداء رأيه

بالتوفيق

والشكر لمشرفتنا أديم على جهودها مع الجميع


أديم 12-14-2010 01:40 PM

أهلا بك

كم اسعدني ..ما قدمته لك ..واتمنى أن يتم مشروعك بنجاح وأن يبارك الله لك فيه..

الصورة لم تظهر عندي!!!

هلاّ رفعتها كصورة ..وليست مرفق...

حتى استطيع التعليق عليها

وفقك الله

essa_net 12-14-2010 09:34 PM

1 مرفق
هلابك يا بو ابراهيم

ما يحتاج تعتذر يا غالي جميعنا نقدر ارتباط شخصكم الكريم

وبإذن الله سوف انزل المخطط بعد إنجازة من المصمم ولكن ما زلت في الفكرة الأولية

_____________________________________________
مشرقتنا القديرة أديم

هلابك وأسعد الله جميع أيامك

هذا هو المخطط سوف ارفقه كمرفق كما طلبتم

أديم 12-15-2010 12:19 AM

جيد

لدي بعض الملاحظات والأمر يحتاج ايضا لمزيد من الدراسة والتمعن

اعتقد أن المدخل لايحتمل ممرين للشقق الا اذا سقطعت جزء من مساحة البناء..

مقلط الشقق من الافضل أن يكون ذا باب سحاب..

المنور حبذا لو ألغي فهو دائما مصدر تلوث وازعاج لساكني الشقق ..طالما أن هناك بدائل له..والاستفادة من مساحته...

مطبخ الفيلا ..بابه لايليق أن يكون مقابلا لمجلس النساء..

ومن الرائع تعديلك ..للدرج ..ففيه تناغم مع التصميم وكذلك فيه نوع استغلال المساحة

حاول أن تكون الجدران بنفس الخط المستقيم دون تباين بينها

وكذلك الاعمدة تكون بنفس النسق والاتجاه..

بالتوفيق

essa_net 12-15-2010 12:59 AM

مشرفتنا أديم أشكرك على سرعة التجاوب وبالنسبة لملاحظاتك جميعها جيدة وكم أسعتدني كلمة ( جيد )
وبإذن الله سوف نصل إلى ممتاز بفعل ملاحظاتك ومساعدتك لنا وانا معكي ان المخطط يحتاج إلى الكثير من التمعن والتعديل ولكن يعلم الله انني تعبت قدماي وانا امشي على المكاتب وتعاقد معهم ولم أجد فيهم الشخص الناصح أو الفاهم جميعهم يطبعون لي عدة نماذج ويقولون عدل عليها ولكن نشكر الله على ان رزقنا أخوان وأخوات مثل شخصكم الكريم يساعدونا نسأل الله ان لايحرمهم الأجر


تعقيب لبعض النقاط من وجهت نظري قابلة للخطأ أكثر منها للصحة

اقتباس:

اعتقد أن المدخل لايحتمل ممرين للشقق الا اذا سقطعت جزء من مساحة البناء..
بالفعل انا نقصت جزء من مساحة الفلة الأمامية بحوالي (1.5 م) وصارت مدخل الشقة الأولى ( 1.5 م) ومدخل الشقة الثانية ( 2 متر )

اقتباس:

مقلط الشقق من الافضل أن يكون ذا باب سحاب..
انا حبيت يكون باب لكي اعطي صالة الشقة استقلالية ويمكن الجلوس فيها لان لو كان باب سحاب راح تكون إجمالي المساحة 3×10 ( للصالة + المقلط) وبكذا راح تكون سرداب طويل للمشاهد

اقتباس:

حاول أن تكون الجدران بنفس الخط المستقيم دون تباين بينها

وكذلك الاعمدة تكون بنفس النسق والاتجاه..
هذة النقطة لم افهما تحتاج توضيح


تحياتي

أديم 12-15-2010 07:10 AM

بارك الله لك

كنت اقصد أن تكون الأعمدة التي تقع على نفس الاستقامة ..

أن تكون ذات شكل طولي مثلا..حتى يسهل عليك التغيير لاحقا فيما لو طرأ عليك جديد

والدرج يكون بزاوية قائمة ..

والباقي لك وجهة نظرك التي تراها مناسبة

وفقك الله وتمم لك بخير

لمسة فنون 12-16-2010 05:27 PM

اقتباس:

المشاركة الأصلية كتبت بواسطة essa_net (المشاركة 2440)
الله يعطيك العافية اخي رجل الصحراء وماقصرت




خبيرنا الكبير ابو ابراهيم ( ماجد المحيميد ) والمبدع مشرفنا لمسة فنون

انتم وعدتوني ان لكم عودة للموضوع لكن تأخرتم علي حبتين ولولا خبرتكم يا حبايبنا كان ما طرحنا الموضوع ( ادخل المنتدى في اليوم أكثر من عشرين مرة اشكيك على الموضوع

لاعدمناكم وجعل ما تقدمونه لنا ولاخواني الاعضاء في ميزان حسناتكم




ههههه ابشر والصبر زين وانت لك ست شهور يعني عطنا شوي وقت

واحسن انك تدخل عشرين مره علشان ينور المنتدى بوجودك

عموما والله اعتذر على التاخير لظروفي الخاصه وانا عملت لك تخطيط للشقه فقط واذا عجبتك اشوف مخطط منزلك

بالنسبه لللشقه ممكن تكون كويسه وممكن يتخللها اخطاء ولكن نشوف رائ الجميع ونعدل حتى تعتمد

اولا عملت لك تخطيط المطبخ ليطل على المنور لان مو كويس الصاله مالها منافذ بتكون حشره للساكن

كذلك غرفة الطعام بجوار المطبخ ومفتوحه على الصاله واذا جتنا مناسبه كل عشر سنين مره طبعا ...

امزززح .... ممكن نضع بارتشن يعني شويه تصرف بحكمه وفكر نطلع بنتيجه .. المجلس الرئيسي ممكن

نقول للضيوف سواء رجال او نساء يعني اعتقد الناس الان ترك المناسبات الجماعيه .. واذا ضيف وزوجته

ممكن هو بالمجلس والزوجه بالصاله ... هذه طريقتي ووجهة نظري واذا انا كنت بستئجر احتاج تكون

كذا شقتي

http://www.llbf.com.sa/uploads/download.php?img=1656


انتظر ردك وبعده نشوف مخططك مع اخواني الي سبقوني برائيهم لهم مني كل الود والتقدير

لمسة فنون


الساعة الآن 11:47 AM.

Powered by vBulletin® Version 3.8.4, Copyright ©2000 - 2025, Jelsoft Enterprises Ltd. TranZ By Almuhajir
F.T.G.Y 3.0 BY: D-sAb.NeT © 2011
HêĽм √ 3.1 BY: ! ωαнαм ! © 2010

a.d - i.s.s.w