منتديات للبناء فنون

منتديات للبناء فنون (http://www.llbf.com.sa/vb/index.php)
-   المخططات المعمارية (http://www.llbf.com.sa/vb/forumdisplay.php?f=20)
-   -   هل ترغب بعرض مخططك للمناقشة هنا بمنتدى المخططات المعمارية ،،, تفضل بالدخول (http://www.llbf.com.sa/vb/showthread.php?t=843)

arch.badr 11-26-2013 01:52 AM

اقتباس:

المشاركة الأصلية كتبت بواسطة لميس سامر (المشاركة 201768)
ممكن تشوفولي تخطيط عمار تي مساحة البناء ٦٠%هي ٥٤٠ متر ابغاها شقتين في الدور الواحد وأطوالها ١٦*٣٨

هذه اول مشاركة لي في هذا الموقع المتميز ، ارحب بجميع الأعضاء الكرام من مهندسين وطلاب ومشاركين ، وارجوا ان اكون عند حسن ظنكم .مع العلم أنني مهندس معماري ولدي خبرة 8 سنوات في المخططات المعمارية والإنشائية لأي مبنى وإعداد المواصفات الفنية وجداول الكميات والإشراف المباشر على المقاولين .

لذلك انا على اتم الأستعداد لعمل اي تصميم معماري وإنشائي متكامل ومتميز وغير تقليدي ولكن لابد من وجود العناصر الرئيسية للفراغات المعمارية التي يريدها المالك او (مستخدم المبنى) وإختيار احجام الفراغات للمبنى . مع وجود الكروكي الخاص بالموقع (بيانات الموقع) قبل عمل الفكرة المعمارية .

لميس سامر 11-26-2013 06:42 PM

شكرًا لك ، هل انت مكتب هندسي يعني اذا فرضا سويت لي تخطيط الارض هل يجب علي دفع مبلغ التخطيط ؟
ليس لدي اي كروكيات باختصار مساحة الارض 900 م وأطوالها 45 *20 طبعا الواجهه 20 م ، الي ابغاها تكون شقتين في الدور الواحد مع توفر مساحه في الحوش لمجلس وغرفة سائق
شكرا لك في كلا الحالتين
انا اريد تخطيط مبدئي لآني لن ابنائها الان ربما بعد سنوات

arch.badr 11-28-2013 12:02 AM

اختي لميس ....
انا ليس لدي مكتب هندسي ولكني اعمل بمجهود شخصي ...اما بالنسبة لطلب الكروكي هو لتحديد الأبعاد بشكل دقيق كما هي بالصك الصادر من كتابة عدل ... وإستخراج الكروكي سهل جدا وفي نفس اليوم من البلدية التي ارضك تقع في نطاقها لأن رخصة البناء تصدر بناءً على بيانات الموقع (الكروكي) .
تتقدمين لأي مكتب هندسي بطلب بيانات موقع (كروكي) ويخرج المساح ويطابق ذرعة الصك على الطبيعة ليتم التطابق ومن ثم التقدم للبلدية لإستخراج الكروكي وإذا لاسمح الله لم يتم التطابق يتم إرسالك الى كتابة عدل لتعديل الصك إذا به اي اختلافات ، لذلك الكروكي مهم جداً لعملية التصميم لأنه الأساس الذي يتم تحديد نسبة البناء (60%) من مساحة الأرض حسب الكروكي وليس الصك .
اما بالنسبة لعملية التصميم كما قلت لك سابقاً تعتمد على طلبك مثلاً ( كم وحدة سكنية في الطابق الواحد وكم عددها في المبنى ككل وكم طابق وهل تريدين ملحق علوي ام لا وهل المبنى سكني فقط ام سكني تجاري ، وعدد الغرف في كل وحدة سكنية (شقة) ومستوى الخصوصية وكم مدخل للوحدة وغير ذلك من المتطلبات الخاصة بالعميل .

لميس سامر 11-29-2013 07:53 AM

شاكرة لك توضيحاتك

منصور منيف 12-08-2013 12:52 AM

file:///C:/Users/sha/Pictures/1435-02-05/032.jpg

منصور منيف 12-08-2013 12:55 AM

هذا مخططى بيت العمر علما بان المجلس وحمام الرجال في الحوش فما رايكم به مساحه الارض 35 +45

منصور منيف 12-08-2013 01:05 AM

file:///C:/Users/sha/Pictures/1435-02-05/341.jpeg

hshedwi 12-17-2013 07:03 PM

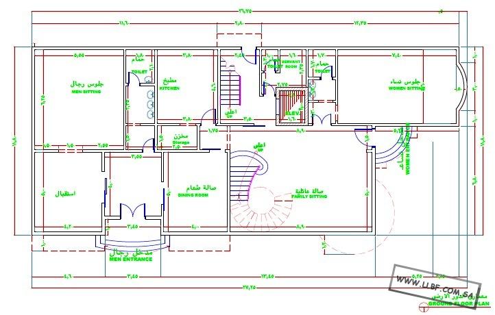
يسعدني ويشرفني ابداء رأيكم في هذاالتصميم لفيلا سكنيه واستراح خاصة
 
السادة والسيدات الافاضل

يسعدني ويشرفني إبداء رأيكم عن المخطط المبدئي لفيلا سكنية تقع على ثلاث واجهات مع استراحة خاصة مفصولة تقع في خلف الفيلا.

ولكم الود والتقدير.

http://www.llbf.com.sa/uploads/do.php?img=35576


http://www.llbf.com.sa/uploads/do.php?img=35577


http://www.llbf.com.sa/uploads/do.php?img=35578


http://www.llbf.com.sa/uploads/do.php?img=35579

ابووو ثامررر 03-24-2014 10:19 AM

الله يعطيكم العافيه على هالصرح الشامخ والعطاء المستمر

مهند ايهم 04-23-2014 09:18 PM

http://www.llbf.com.sa/uploads/uploa...3982769271.jpg


الساعة الآن 12:25 AM.

Powered by vBulletin® Version 3.8.4, Copyright ©2000 - 2025, Jelsoft Enterprises Ltd. TranZ By Almuhajir
F.T.G.Y 3.0 BY: D-sAb.NeT © 2011
HêĽм √ 3.1 BY: ! ωαнαм ! © 2010

a.d - i.s.s.w