منتديات للبناء فنون

منتديات للبناء فنون (http://www.llbf.com.sa/vb/index.php)
-   المخططات المعمارية (http://www.llbf.com.sa/vb/forumdisplay.php?f=20)
-   -   احتاج رايكم في مخططي اثابكم الله (http://www.llbf.com.sa/vb/showthread.php?t=8003)

بيت السعادة 06-13-2013 02:01 AM

احتاج رايكم في مخططي اثابكم الله
 
السلام عليكم احتاج رايكم في المخطط اسعدكم الله بطاعته

<P><IMG src="http://http://www.llbf.com.sa/uploads/do.php?img=34816"><IMG border=0 alt="" src="http://www.llbf.com.sa/uploads/do.php?img=34813"></P>

بيت السعادة 06-18-2013 06:33 PM

اعتذر عن الخطا في تنزيل الصور
لم اعرف سبب الخطا رغم اني اتبعت جميع الخطوات

En.eid 06-22-2013 10:21 AM



هذا المخطط التي حاولتي أرفاقة ...

بيت السعادة 06-23-2013 06:29 PM

انا ارفقت اربع صور اثابكم الله
هذا فقط البادروم سأحاول ارفاق الباقي

بيت السعادة 06-23-2013 07:36 PM

http://www.llbf.com.sa/uploads/do.php?img=34813

http://www.llbf.com.sa/uploads/do.php?img=34816

http://im41.gulfup.com/wI1rw.jpg

http://im41.gulfup.com/0XQvh.jpg

بيت السعادة 06-23-2013 08:29 PM

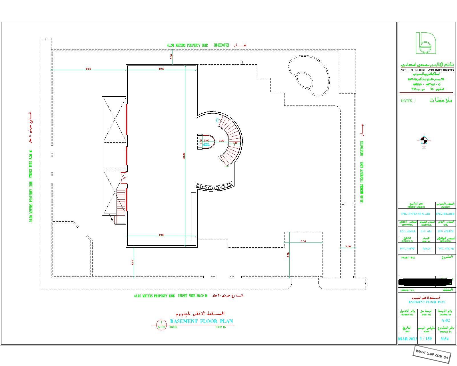
الله يسعدكم دنيا وآخرة احتاج رايكم في المخطط ومساعدتي في الآتي :
1/ رايكم في اماكن الابواب والفتحات هل مناسب اوترون تغيير في مكان معين فمثل اضع باب مكان فتحه او اشيل باب وهكذا.
2/البادروم كثير حذروني من وضع مغاسل فيه علشان الماء ومشاكل تصعيد الماء مع العلم ان البدروم غرفة طعام واحتاج مغاسل لغسل الضيوف ايديهم.
3/اريد تحديد اماكن للنوافذ وكم يكون مقاسها مع العلم اني اريد النوافذ المستطيلة لكن احتاج تحديد مقاسات لها علما" بان النوافذ تكون قريبه من الارض يمكن ترتفع نصف متر فقط عن الأرض.
4/شكل الدرج الدائري هل مناسب ويقولون انه متعب وهل وجود المصعد بداخله افضل .
5/مقاس غرفة تبديل الملابس يقولون زميلاتي 3في 2،85 صغيره فماهو رايكم ؟؟هل اكبرها.
6/المطبخ اثنين واحد مقابل الصالة وثاني جنب المستودع المطبخ الي مقايل الصالة ما احتاج فيه شي اما المطبخ القريب من المستودع محتاره في تقسيمه وين احط المجلى والاطقم والفرن رغم وجود خطا في صورة المستودع لان المهندس رسم باب ع التهويه وهو غير موجود فياليت تساعدوني في تحديد الاماكن السابقة واماكن الدواليب الجدارية الخاصة بالمستودع .
7/اريد تحديد اماكن دواليب جدارية في غرفة العيال في الدور الثاني فما المكان المناسب لها .
8/في الدور الثاني شقتين لا احتاج فيها لشي الا اذا لدى احدكم اقتراح معين او وجهة نظر فحياه الله.
9/الله يكرمكم الحمام الرئيسي احتاج له اقتراح لتقسيمه مثل التقسيات الجديدة بس ما اعرف اقدر المساحات
10/اريد اقتراحات لمناورمن الزجاج .
11/الملحق هل يوجد له شكل جديد غير القليدي .
اثابكم الله ويسر اموركم في الدنيا والآخرة

بيت السعادة 06-29-2013 09:38 AM

ليه مافي تجاوب في المنتدى
ولا مره سألت او استفسرت ولقيت احد يرد
رغم وجود عدد كبير يشاهد الموضوع

بيت السعادة 07-13-2013 11:00 AM

ماسبب عدم التجاوب يامدير المنتدى...؟؟؟؟؟

archconsept 07-16-2013 12:36 PM

السلام عليكم ورحمة الله وبركاتة
الدرج مساحتة كبيرة جدااا ...المساحة التي حول الدرج وخلفة لافائدة منها وتعتبر مساحة ضائعة ؟؟
مدخل الرجال كبير جدا ومفتوح مباشرة علي المجلس وهذا غير مريح ....ايضا المغاسل و الحمام غير معزولة عن المجلس بمعني ان من داخل المجلس يكشف الحمام بكل سهولة !!!!
المكتبة احس مساحتها كبيرة لانها لن تستخدم بهذا الحجم ولن تكون لها استخدام متواصل بل من الممكن تغييرها الي غرفة نوم ضيوف في اي وقت لذلك يفضل دراسة ذلك
أين صالة الطعام!!!! ,,,,, لابد من وجود صالة طعام فخمة و لها اطلالة مميزة لان الفيلا مساحتها كبيرة
مطبخ الخدمة مباشرة علي الواجهة غير موفق لابد ان يكون لة خصوصية و الدخول لة بشكل غير مباشر
المستودع مباشرة علي الصالة !!! ما الهدف من ذلك ؟؟
المساحات المفتوحة علي يمين و يسار المدخل لتهوية البدروم فاشلة للاسف لان مع الوقت ستجد ان ليس منها فائدة و شوهت منظر المدخل ,,,كما ان التهوية لا تكون بهذا الشكل ابدا
حمام السباحة الخلفي المساحة لموجود بها صغيرة و المفترض ان يكون هناك صالة عائلية كبيرة ومسطح زجاج بالكامل علي المسبح لتكون جلسة دائمة ,,,,وشبة مغلقة
درج الشقق موقعة غير موفق و مكانة أثر سلبا علي تصميم الشقة العلوية ,..
الدور الاول لن ابدي علية ملاحظاتي لعدم تناسقة معماريا

بيت السعادة 07-19-2013 01:38 PM

اشكرك اخي الفاضل المهندس محمد جزيل الشكر على توضيح ملاحظاتك
ولكن احب افهمك بعض المور:
1/ الدرج مساحته كبيره لان المصعد في وسط الدرج وهو بانوروما
2/المساحه حولين الدرج ليس ضائعه لان خلف الدرج المطبخ المفتوح ومقابل البركة غرفه المعيشة وجداره المواجه للبركة زجاج والجدار المضلع كله زجاج مطل ع البركه وهو مكان طاولة الطعام العائليه
3/اما المكتبه فلدي غرفه في بيتي الحالي 7في 5 ودواليب الكتب ملاصقة للارض وممتدة للسقف ومع ذلك اجد ضيق في ترتيب الكتب فلمكتبة من اهم الغرف لدينا لان طابع بيتي يختلف .خاصه اننا نحتاجها قريبه من المجلس لمدارسة اهل العلم
4/لم افهم قصدك من تهوية البادروم رغم اني اخذت الفكرة من احد المنازل التي زرتها بنفسي واجدها طريقة مجديه للتهوية فهل لديك تعديل ع طريقة التهويه في البادروم؟؟؟
5/حمام المجلس معزول وبعيد عن المجلس خاصه اني سوف اضع ديكور في القوس القريب من الباب الذي يدخل ع باب الصالة
6/لماذا الدور الاول غير متناسق معماريا ياليت توضح؟؟
7/اما المستودع تعمدت ان يكون هنا حتى ابعد الروائح عن الصالة ومطبخ الخدمة هنا حتى يكون قريب من الباب لتناول الأغراض واخراج النفايات وووووالخ

توفي 04-02-2014 12:34 AM

انا لست مهندسة لكن اعتبرني متذوقة ومخططك راق لي كثيراً شرح ومتناسق ماشاءالله الله يبارك لكم فيه،،اقترح عليك التبديل بين المستودع والمطبخ الداخلي وتجعل باب غرفة الخادمة يفتح على المستودع حتى يتم التواصل بين المطبخين دون المرور بالمستودع وتقل الأبواب بالمطبخ لتتمكن من تأثيثه بسهوله ودون تشويه

توفي 04-02-2014 12:43 AM

مخطط الدور الثاني لم يظهر لدي


الساعة الآن 11:31 PM.

Powered by vBulletin® Version 3.8.4, Copyright ©2000 - 2025, Jelsoft Enterprises Ltd. TranZ By Almuhajir
F.T.G.Y 3.0 BY: D-sAb.NeT © 2011
HêĽм √ 3.1 BY: ! ωαнαм ! © 2010

a.d - i.s.s.w