منتديات للبناء فنون

منتديات للبناء فنون (http://www.llbf.com.sa/vb/index.php)
-   المخططات المعمارية (http://www.llbf.com.sa/vb/forumdisplay.php?f=20)
-   -   محتار وأي مخطط أختار (http://www.llbf.com.sa/vb/showthread.php?t=304)

sallag 11-04-2010 03:42 AM

محتار وأي مخطط أختار
 
3 مرفق
1
ملف مرفق 81
2
ملف مرفق 82
3
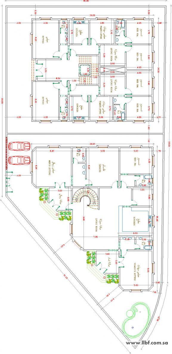
ملف مرفق 83اخواني الكرام سهران على مخططي وهو عبارة عن عمار سكنية دورين وفلة سكنية خاصة دورين ومحتار أي نموذج أختار من حيث الراحة والأمان والأداء الوظيفي ارجو الاطلاع والنقد الهادف أثابكم الله وجعل ذالك في ميزان حسناتكم
تحياتي للجميع

ماجد المحيميد 11-04-2010 05:55 AM


ماجد المحيميد 11-05-2010 02:37 AM

هلا بك

أخي الكريم


المخططات تحتاج إلى شيء من التمعن والمقارنة

لي عودة بإذن الله تعالى

ومبدئياً الشقق من الجيد الاستغناء عن مجلس السيدات وضمه إلى صالة المعيشة


أديم 11-05-2010 12:38 PM

كتبت ردا مطووولا

وبعجلة مني قررت ان اطلع على التصويت بعدما كتبت مقترحاتي

لكنه للأسف طاااار بلا رجعه

أولا اعتذر من استاذنا أو ابراهيم ..أن استبقناه للرد


ثانيا ماشاء الله المخطط بعمومه يدل على حس هندسي متناسق

وفيه استغلال للمساحات رغم انشطار الأرض وقكرة ممتازة من حيث الاستثمار

أنا أرى أن النموذج الثالث هو الأفضل

واليك بعض من مقترحاتي حوله

أولا يرحل الدرج الى موقعه كما في النموذج الثاني..بحيث يكون لصيقا لجدار صالة الرجال ..

يلغى طبعا باب صالة الرجال فليس له أي فائدة تذكر ..

وصالة الرجال لو زدتها 50 سم مع الاتجاهين(تؤخذ من الصالة وليست من المساحة الخارجية

فربما تستفيد منها كمجلس عربي أو جلسة شبابية..حتى لاتفكر مستقبلا ..ببناء مجلس خارجية أو خيمة وخلافة

يصمم باب غرفة الطعام على شكل باب سحب بعرض الجدار بحيث يمكن ضمه للصالة متى شئت

موقع المطبخ غرفة النوم(لو تبادلا) لكان افضل(نقولها على استحياء) ...وان لم يكن..فلا بأس ..

عرض غرفة الطعام ..حبذا ألا يزيد عن 4,50 م..مساحة جدا كافية وان كان 4,30 سم فهو ممتاز..

بحيث تستفيدمن هذا النصف لاتساع الحوش أو لاضافته الى غرفة النوم باعتبار أني اقترح عليك..

أن تضعها في الركن بشكل طولي والحمام بينها وبين غرفة الطعام

المستودع بضم للمطبخ دون الحاجة لفتحه على الصالة.أكثر خصوصية ..واكثر اريحية في الاستخدام


صالة النساء في المقدمة اعطت نوعا من تناسق الشكل فحسب..وبالامكان الاستغناء عنها ووضع المجلس

يشكل عرضي على أن تكون دورة المياه هي التي في المقدمة..وبهذا تكون تخلصت

من بابين داخل المجلس وحافظت على الشكل..ووفرت مزيدا من المساحة..ومساحة 5*5 كافية لمجلس النساء...

فصالة المعيشة مساحتها كافة جدا لأن تتسع لمزيد من الضيوف..

بالتوفيق

sallag 11-05-2010 02:43 PM

شكر وتقدير
 
أخي الكريم أديم أشكر لك ردك الهادف والموفق على موضوعي والذي تعتقد أنه قد طار بلا رجعة فلن يطير بإذن الله أسأل الله عز وجل أن يكتب لك الأجر ويجزل لك الثواب واقدر لك هذا المجهود الطيب وسوف أضع لهذه الملاحظات والمقترحات قدراً كبيرأ من الأهتمام وفقنا الله وإياكم إلى ما يحبه ويرضاه
ولا أنسى أن أشكر جميع الأخواة الذين صوتو على الاستلاع وأرجو أن يكتب ذالك في ميزان حسناتهم
تقبلو تحياتي

sallag 11-05-2010 06:42 PM

مشاق للعودة يا أبو ابراهيم
 
اقتباس:

المشاركة الأصلية كتبت بواسطة ماجد المحيميد (المشاركة 1509)
هلا بك

أخي الكريم


المخططات تحتاج إلى شيء من التمعن والمقارنة

لي عودة بإذن الله تعالى

ومبدئياً الشقق من الجيد الاستغناء عن مجلس السيدات وضمه إلى صالة المعيشة


شكراً لاهتمامك يا أبو ابراهيم ومشتاق للعودة وتعجبني إنتقاداتكم واقتراحاتكم الهادفة
تقبل تحياتي

sallag 11-06-2010 11:25 PM

تعديل في التصميم الثاني
 
2 مرفق
أخواني الكرام قررت القيام باعتماد التصميم الثاني بعد ما أجريت عليه بعض التعديلات فما هي ملاحظاتكم واقتراحانكم
شاكر لكم جهودكم الخيرة أثابكم الله
مرفق لكم الدورين الأرضي والأول
تقبلو تحياتي
ملف مرفق 84

ملف مرفق 85

ماجد المحيميد 11-07-2010 07:38 AM

هلا بك

أخي الكريم

إليك بعض المقترحات

على النموذج المعتمد من قبلكم

http://www.llbf.com.sa/uploads/download.php?img=1058


1
مجلس النساء
ليس بحاجة إلى باب وارى أن يكون مفتوح على المدخل
الباب المؤدي من مدخل النساء إلى الصالة لونه (بني) يكون سحاب لإضافة شيء من الاتساع البصري عند استخدام الصالة ومجلس النساء في وقت واحد

المطبخ
يتم نقله مكان غرفة النوم
لأن البعض يرى أن المطبخ يضيف شيء من الجمال للمنزل وخاصة الصالة وهذا بخلاف الواقع فهنا تم إهدار مساحة نحن بأمس الحاجة لها خاصة من الناحية الوظيفية للمطبخ

2
الجدار هذا لونه (بني) يستخدم كجزء لأعمال الديكورات واللوحات وسيكون مؤثر جداً في جمالية الصالة وربما يكون هو المتنفس الوحيد للصالة لاستخدامه كقطعة فنية حيث أنه مصمت ولا يوجد به نوافذ وقد وقع في منطقة ممر

3
الموزع بين غرفة النوم والمطبخ ودورة المياه
أرى أن يكون على شكل نصف دائرة فهنا أضاف شيء من التميز للفراغ وكأنه إضافة جمالية للصالة وشيء للخروج عن المألوف في الموزعات المعتادة والتي تسهم في قتل الجمالية للفراغات

4
باب غرفة الطعام يكون باب سحاب
بحيث يتم إغلاقه فقط عند استخدام الطعام وبقية العام تكون الطعام جزء من الصالة الرئيسية للمنزل

5
بداية الدرج تكون من الجهة الثانية جهة مجلس الرجال
لأن بداية الدرج هنا تكسب شيء بسيط من الجمال وفخامة للدرج لكن فيه هدر كبير من المساحة

6
مجلس الرجال ليس بحاجة إلى باب

7
جدار الصالة من الجيد أن يكون على شكل ربع دائرة ويتخلله عدد من النوافذ الطولية

8
باب مجلس الرجال بدلاً من أن تكون الجدران المحيطة بالباب من اليمين والشمال بشكل حاد
فجيد أن يكون الباب عن يمينه وشماله (الجدران) على شكل ربع دائرة من الأرض وصولاً إلى نهاية المبنى من الأعلى


سؤالي
أين مدخل النساء من الشارع؟
هل المدخل واحد للمنزل؟

sallag 11-07-2010 06:56 PM

هلا والله بأبو ابراهيم تحية طيبة
سرني جداً عودتك الكريمة لموضوعي وبذلكم المجهود الوافر والكبير في التمعن والتركيز وما تلك الملاحظات المهمة والهادفة الا دليل على إهمامك الكبير بأسرة هذا المنتدى العظيم والثري بالمعلومات الهندسية فيما يخص البنا والتعمير وغيره وأفيدكم بأني قد أسفدت إستفادة كبيرة جداً من هذة الملاحظات الهادفة وسوف آخذها بعين الأعتبار أما بخصوص سؤالكم عن مدخل النساء من الشارع فالمدخل واحد للرجال والنساء

تقبل تحياتي وشكراً

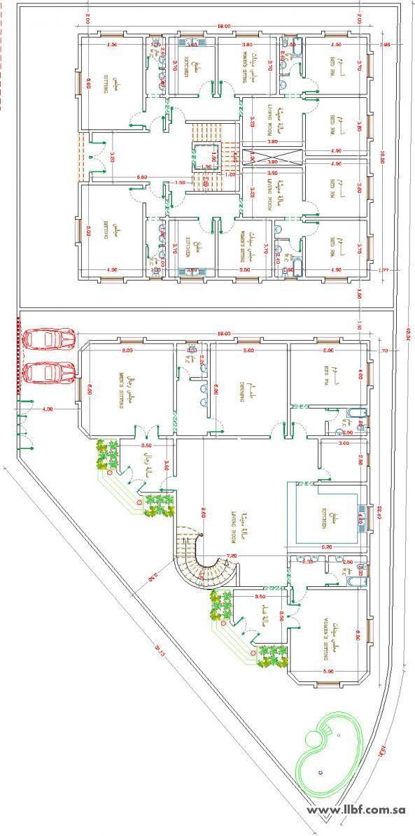
sallag 11-08-2010 11:11 PM

2 مرفق
اقتباس:

المشاركة الأصلية كتبت بواسطة sallag (المشاركة 1597)
هلا والله بأبو ابراهيم تحية طيبة
سرني جداً عودتك الكريمة لموضوعي وبذلكم المجهود الوافر والكبير في التمعن والتركيز وما تلك الملاحظات المهمة والهادفة الا دليل على إهمامك الكبير بأسرة هذا المنتدى العظيم والثري بالمعلومات الهندسية فيما يخص البنا والتعمير وغيره وأفيدكم بأني قد أسفدت إستفادة كبيرة جداً من هذة الملاحظات الهادفة وسوف آخذها بعين الأعتبار أما بخصوص سؤالكم عن مدخل النساء من الشارع فالمدخل واحد للرجال والنساء

تقبل تحياتي وشكراً

الدور الأول
ملف مرفق 86
الملحق
ملف مرفق 87


الساعة الآن 02:13 PM.

Powered by vBulletin® Version 3.8.4, Copyright ©2000 - 2025, Jelsoft Enterprises Ltd. TranZ By Almuhajir
F.T.G.Y 3.0 BY: D-sAb.NeT © 2011
HêĽм √ 3.1 BY: ! ωαнαм ! © 2010

a.d - i.s.s.w