منتديات للبناء فنون

منتديات للبناء فنون (http://www.llbf.com.sa/vb/index.php)
-   المخططات المعمارية (http://www.llbf.com.sa/vb/forumdisplay.php?f=20)
-   -   رايكم يهمني بتصميم هذه الشقه (http://www.llbf.com.sa/vb/showthread.php?t=381)

عذال العذال 11-24-2010 06:25 PM

رايكم يهمني بتصميم هذه الشقه
 
1 مرفق
الاخ ابو ابراهيم السلام عليكم ورحمة الله وبركاته

( أ)- هل استطيع عمل منور في هذه الصاله رقم (1)يكون متنفس للصاله لتجديد الهواء بها ومصدر اضاءة في

نفس الوقت ام فائدة المنور فقط للاضاءه

(ب)- اين انسب مكان لوضع المطبخ هل اجعله في مكانه ام اغيره مع الغرفه التي برقم (3)

واضع مكان المطبخ غرفه مطله علي الصاله قد تستخدم مجلس للنساء او غرفة نوم


تكفون ياخوان طالب مشورتكم ولاهان ابو ابراهيم

ماجد المحيميد 11-25-2010 05:41 PM

هلا بك

لا أنصحك بعمل منور

من الجيد نقل المطبخ بالغرفة رقم 3 و عمل المطبخ الحالي إلى جلسة مطلة على الصالة وهذا يضيف شيء كثير من الاتساع للمكان وتوفير الإضاءة والتهوية
رغم أنك خسرت غرفة نوم إلا أنه تم إضافة اتساع كبير وملموس للمكان

http://www.llbf.com.sa/uploads/download.php?img=1251


لمسة فنون 11-29-2010 12:42 AM



عملت لك تخطيط مبدئي فقط لاعطائك تخيل عند فرش الشقه كيف بيكون بعد ماعدلها

الاستاذ ماجد اذا عجبك والا نعدل فيها لين ترتاح لاخر تخطيط يناسبك

انا قفلت بين مدخل الرجال والحمام والمغسلة ممكن نعمل حاجز من الجبس بورد او زجاج معشق او اي

شي اهم شي المغسلة والحمام بنظري غير مناسبه عند دخول البيت كمان كان عندي تخطيط اخر لموقع

المطبخ اذا حبيت اغيره واعطيك الفكره عطني خبر واذا هنا مناسب الحمدلله

تحياتي وتقديري

http://www.llbf.com.sa/uploads/download.php?img=1373


عذال العذال 11-29-2010 09:47 PM

اختي الغاليه لمسة فنون

شاكر لك كل ماكتبتيه واقترحتي بهي علي والله لايحرمك الاجر ان شاء الله ولاكن عندي طلب صغيرون منك ابغاك تشوفين الشقه المقابله لهذه الشقه وتعطيني رايك فيها واذا قدرتي تغيرين في الشقه الاولي مكان المطبخ وتضعينه مجلس نساء تسوين معي خير لاني بصراحة افتقد في مخططي في كل الشقتين الي اللمسات الجمالية ارجو منك المساعده

لمسة فنون 11-29-2010 10:06 PM

اقتباس:

المشاركة الأصلية كتبت بواسطة عذال العذال (المشاركة 2173)
اختي الغاليه لمسة فنون

شاكر لك كل ماكتبتيه واقترحتي بهي علي والله لايحرمك الاجر ان شاء الله ولاكن عندي طلب صغيرون منك ابغاك تشوفين الشقه المقابله لهذه الشقه وتعطيني رايك فيها واذا قدرتي تغيرين في الشقه الاولي مكان المطبخ وتضعينه مجلس نساء تسوين معي خير لاني بصراحة افتقد في مخططي في كل الشقتين الي اللمسات الجمالية ارجو منك المساعده



ابشر اخي الفاضل بشوفلك الشقه الثانيه ولكن سؤال اي المطابخ تقصد اغيره لمجلس نساء الي انا عملته ام الشقه الثانيه ..

اذا المقصود الي عملته لك ....تعرف ليه اخترت هذا المكان لاني ارى ان تكون الصاله واسعه ومريحه للنظر

تعطيك متسع للشقه ..ومقسمه لعدة اجزاء منها غرفة الطعام وهي قريبه للمدخل والمطبخ لا نجعله

مفتوح كامل وانما جزء نفتحه لوضع كراسي خدمه سريعه للاسره وبجوارها جلسة عائليه تكون قريبه

من المطبخ وجلسة التلفاز ويوجد جلسه اخرى قريبه من غرف النوم وكمان يمكن وضع مكتب خاص يستخدم للجميع

وهذه الجلسة مكن تستخدم للنساء ... مايمنع وكمان ممكن مجلس الرجال يستخدم للنساء لو مايوجد

رجال ليه نحشر انفسنا .. بالنسبه لمجلس الرجال يمكنك الغاء الباب المدخل للمجلس ووضع قوس

بجبس بلمسة بسيطه ويكتفى بباب المدخل وباب سحاب بين الصاله والمجلس لا تكثر الابواب ولا تكثر

الجبسيات والالوان والتعتيق كلها نلغيها لاظهار الشقه بجمال وذوق وفن مريح لحياة هانئه .. انتظرني للشقه الثانيه ..

تحياتي وتقديري لك

لمسة فنون

عذال العذال 11-30-2010 06:09 PM

اختي الغالية انا معطيك الصالحيات المطلقه ابقي منك حفظك الله ان تكون الشقتين في قاية الروعه والترتيب

عذال العذال 11-30-2010 06:23 PM

انا اقصد ياختي ان مكان المطبخ الحالي الذي تم تعديله ارغب ان اجعله مجلس نساء وبجوارة المغاسل ويمكن في المستقبل ان يستخدم كغرفة نوم لاصحاب الشقه اذا كانت عائلتهم كبيره ابقي رايك بصراحه

لمسة فنون 12-01-2010 10:23 PM

استاذ عذال بالنسبه للمستئجر اهم حاجه عنده ان تكون الشقه شرحه وبناء جيد من حيث العوازل عن

الاصوات والحراره كما تكون التمديدات السباكه والكهرباء جيده .. حتى لا ينزعج من المشاكل الصيانه

المستمره ويكون هو ضحيه .. اما الشكل الخارجي مهما عمل فلن يفي بالغرض والفائده للمستئجر.

استاذي عندما تبني للاستثمار جدا فكره رائعه وممتازه لتحسين الدخل وممكن تحتاجه مستقبل للابناء لو اضطررت ..

لكي نبني بناء صحيح ومريح نجتهد بالعمل والتوفيق بيد الله ..وحتى البناء الجيد يبقى لك ويريحك .

من الضروري الاهتمام بالعزل الحراري والمائي والاصوات ..

النوافذ تكون وسط مو كبيره ترهقك ماديا وكذلك جونا مايساعد على كبر المساحه ..

ولا تضعها صغيره تخنق الساكن .. الوسط حلو ..

نهتم بعوازل النوافذ .. ومواد السباكه والكهرباء ..

اشياء ممكن لا تهتم بها ويمكنك تقليصها فيها توفير وبنفس الوقت غير مهمه للمستئجر بقولك ماهي

اولا حاول تقليص الابواب كما وضحته لك بالتصميم

كذلك نبتعد عن كثرة الجبسيات بالزخارف الزائده تتعب النظر ..وكذلك الالوان من تعتيق وغيره نبتعد عنها ..

.مكلفه وهي ممله جدا ... فقط نجعل الدهان الاخير لون واحد ويفضل دائما الاف وايت ..

الجبس يكون بسيط فقط لعمل تحديد بين السقف والجدار .. كذلك ليس من الضروري ان نضع رخام

وانواعه ... يكتفى بالسراميك ويكون بسعر بسيط المهم الذوق بالاختيار وتنسيقه مع بعضه بطريقه

احترافيه وفنيه .. كذلك نقلص عدد الابواب ويكتفى بابواب يكون لها دور هام هذا ما ارغب ذكره للراغبين

بالاستثمار العقاري .. وثق ثقه كبيره لو عملت بكلامي باذن الله سيتسابقون المستئجرين لحجز الشقه

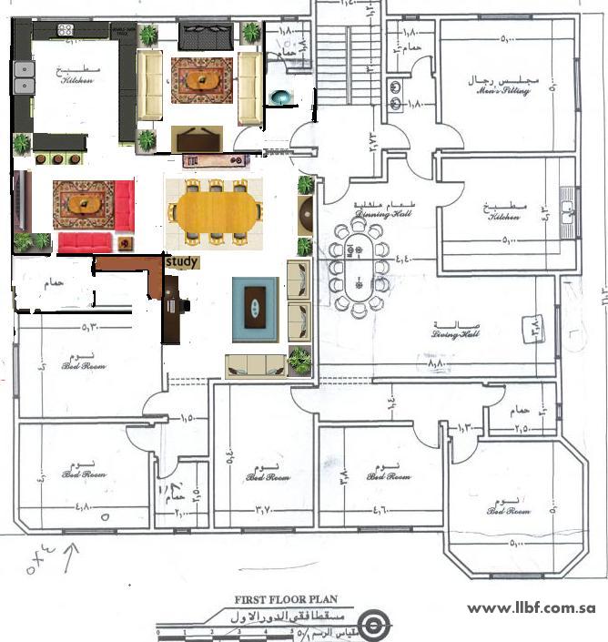
.. نرجع لتخطيط شقتك انا عملت لها شوي تخطيط .. للاسف انا لا اجيد العمل على برنامج الدي ثري

ماكس لذلك تخطيطي مو دقيق يعني عليميه قص ولزق عن طريق الرسام ولكن نمشي الحال .. الهدف من ذلك فقط تصور الشقه

وطريقة تخطيط المطبخ والصاله والحمامات وتوزيع الاثاث ممكن يتغير

بالطريقه المحببه لصاحب السكن .. الرجاء النظر للتخطيط ولا ننظر الى الاثاث

الشقه الثانيه لديها ثلاث غرف نوم وللاسف مافيه الا حمام واحد انا عملت تخطيط ممكن كويس وصائب وممكن لا يحتاج الى تفكير اكثر للتعديل مافيه مشكله ..

المشكله الان كيف نعمل تخطيط لحمام الابناء انا جالسه افكر وان شاء الله اجد الفكره وارسمها انتظر التعليق منك ومن الاخوان كيف رؤيتهم .. لنستفيد من بعض

تحياتي وتقديري

http://www.llbf.com.sa/uploads/download.php?img=1428



لمسة فنون 12-01-2010 10:29 PM

اقتباس:

المشاركة الأصلية كتبت بواسطة عذال العذال (المشاركة 2213)
انا اقصد ياختي ان مكان المطبخ الحالي الذي تم تعديله ارغب ان اجعله مجلس نساء وبجوارة المغاسل ويمكن في المستقبل ان يستخدم كغرفة نوم لاصحاب الشقه اذا كانت عائلتهم كبيره ابقي رايك بصراحه


اخي المطبخ ممكن انقله لك بالصاله بعملك تخطيط اخر ولكن صدقني مكانه جدا مناسب وعندك الان

شقتين واحده ثلاث غرف والثانيه غرفتين وهذا شي حلو بتنوع العائلات واحسن لك اذا المستئجر مايكون

عدد افراد الاسره وخاصه الاطفال كبير ... اللهم اجعله منزل مبارك ويوفقك بالجار تالمسثمر الي يخاف الله

تحياتي وتقديري

لمسة فنون

عذال العذال 12-02-2010 05:51 AM

اختي الغالية بصدق يعجز قلبي ولساني عن شكرك واحسانك بتفضلك علي بابداء افكارك النيره التي لااستغني عنهاوسوف اقوم بهذه التغيرات في التعديل الاخر مع المهندس مع فائق التقدير لشخصك الكريم


الساعة الآن 03:44 AM.

Powered by vBulletin® Version 3.8.4, Copyright ©2000 - 2025, Jelsoft Enterprises Ltd. TranZ By Almuhajir
F.T.G.Y 3.0 BY: D-sAb.NeT © 2011
HêĽм √ 3.1 BY: ! ωαнαм ! © 2010

a.d - i.s.s.w