منتديات للبناء فنون

منتديات للبناء فنون (http://www.llbf.com.sa/vb/index.php)
-   المخططات المعمارية (http://www.llbf.com.sa/vb/forumdisplay.php?f=20)
-   -   بصراحة احترت بموقع الباب بهذه الصاله (http://www.llbf.com.sa/vb/showthread.php?t=382)

عذال العذال 11-24-2010 07:27 PM

بصراحة احترت بموقع الباب بهذه الصاله
 
1 مرفق
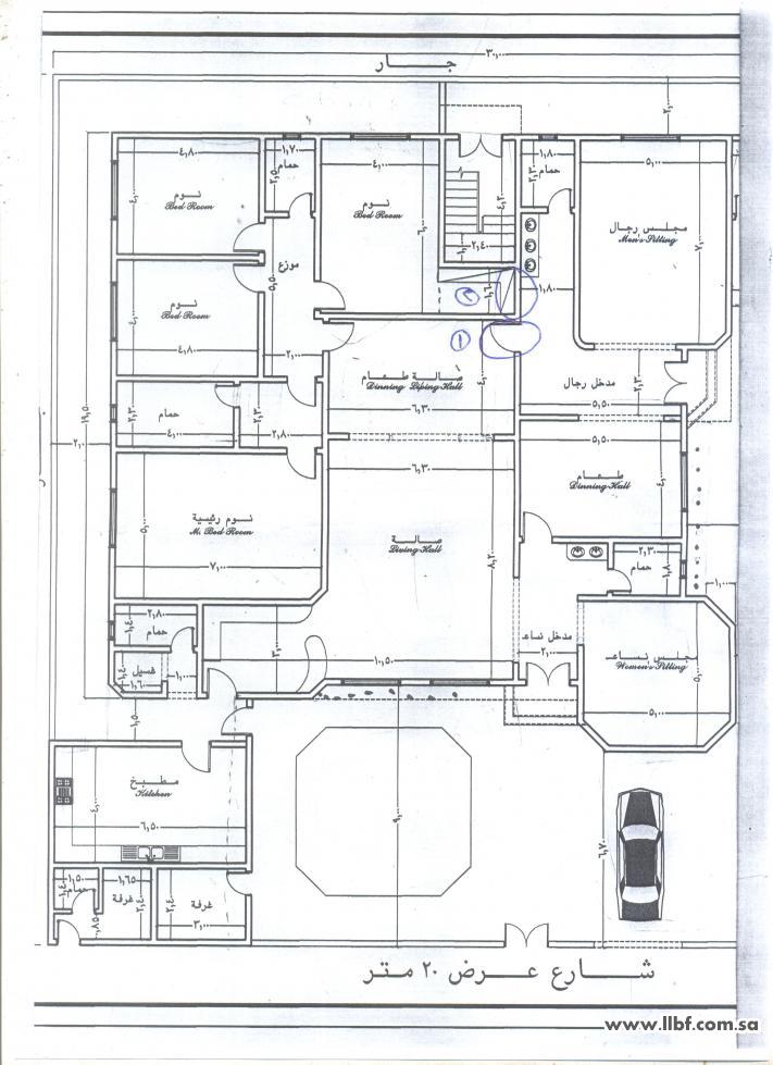
اخواني الاعزاء بصراحة احترت في موضع الباب الذي يدخل علي الصالة لان صالتي كبيره مقاسها


6في 12 وناوي اقسمها لصالتان صالة معيشه وصالة يوضع بها طقم طاولة طعام المشكله في النصف


الاخر من الصاله يفتح عليه باب من جهة مجلس الرجال قد وضعته لكي يكون تهوية لهذه الصاله ومدخل


غريب لغرف النوم بدل من ادخل من وسط الصاله هل هناك طريقه معينه لتهوية هذا الجزء من الصالة


دون الاستعانه بهذا الباب ام انقل الباب الي الجهة المؤشر عليها برقم (2)

http://www.llbf.com.sa/uploads/download.php?img=1249
رايكم يهمنا ياخواني

أديم 11-25-2010 03:27 AM

أهلا بك

يبدو لي أن الأمر سهلا فهناك عدة خيارات

لكن الأنسب اليك كما يظهر لي ..وكما تحبذ أيضا هو أن تغلق الباب رقم (1)(حبذا أن يكون اغلاقه بزجاج (مثلج)

تقلب الفكرة بحيث تكون صالة الطعام الجديدة هي القريبة من المطبخ وبمحاذاة غرفة الطعام الأصلية

وتفتح بابا آخر لغرفة الطعام الأصلية على صالة الطعام المستحدثة ..

على شكل (باب السحب)

وبذلك تنال قدرا أوسع من المساحة وتستفيد من الغرفة في غياب الضيوف ..

وتقترب من المطبخ ايضا

وتحقق قدرا أكبر من التهوية والانارة..خاصة اذا كانت نافذة غرفة الطعام كبيرة


أتمنى أن تكون الصورة واضحة

واعتذر عن اضافة رسم للمخطط لضيق الوقت

ماجد المحيميد 11-25-2010 10:45 AM

هلا بك

أخي الكريم

http://www.llbf.com.sa/uploads/download.php?img=1250

يفضل إغلاق الباب رقم 1 نهائياً

وعمل نوافذ وهمية لإضافة شيء من الاتساع البصري للمكان
النوافذ الوهمية كما هي موضحة باللون الأحمر
على أن يكون مقاس جميع النوافذ بالصالة واحد

النوافذ المطلة على الحوش يجب أن تكون بمقاس كبير ونازلة للأرض لأنها هي المتنفس الحقيقي للمكان سواءً إضاءة أو تهوية

من الجيد كما تفضلت الأستاذة أديم نقل صالة الطعام بالقرب من المطبخ

على جدار غرفة النوم الرئيسية اللون الأزرق من الجيد التأسيس من الآن لجدار بعرض 30 سم لعمل تجاويف جدارية في هذه المنطقة

متمنياً لك التوفيق

عذال العذال 11-27-2010 06:57 PM

اشكر لاخ ابراهيم والاخت اديم علي ماتفضلو به علي ولكن ياخت اديم حبذا لو تقومين بتقريب الفكره وذالك بشرحها علي المخطط كما فعل اخونا الغالي ابو ابراهيم حتي توصل الفكره لي مع دعواتي الصادقه لكم


الساعة الآن 08:20 AM.

Powered by vBulletin® Version 3.8.4, Copyright ©2000 - 2025, Jelsoft Enterprises Ltd. TranZ By Almuhajir
F.T.G.Y 3.0 BY: D-sAb.NeT © 2011
HêĽм √ 3.1 BY: ! ωαнαм ! © 2010

a.d - i.s.s.w