منتديات للبناء فنون

منتديات للبناء فنون (http://www.llbf.com.sa/vb/index.php)
-   المخططات المعمارية (http://www.llbf.com.sa/vb/forumdisplay.php?f=20)
-   -   ماخاب من استشار جزاكم الله خير (http://www.llbf.com.sa/vb/showthread.php?t=387)

sallag 11-25-2010 08:18 PM

ماخاب من استشار جزاكم الله خير
 
2 مرفق
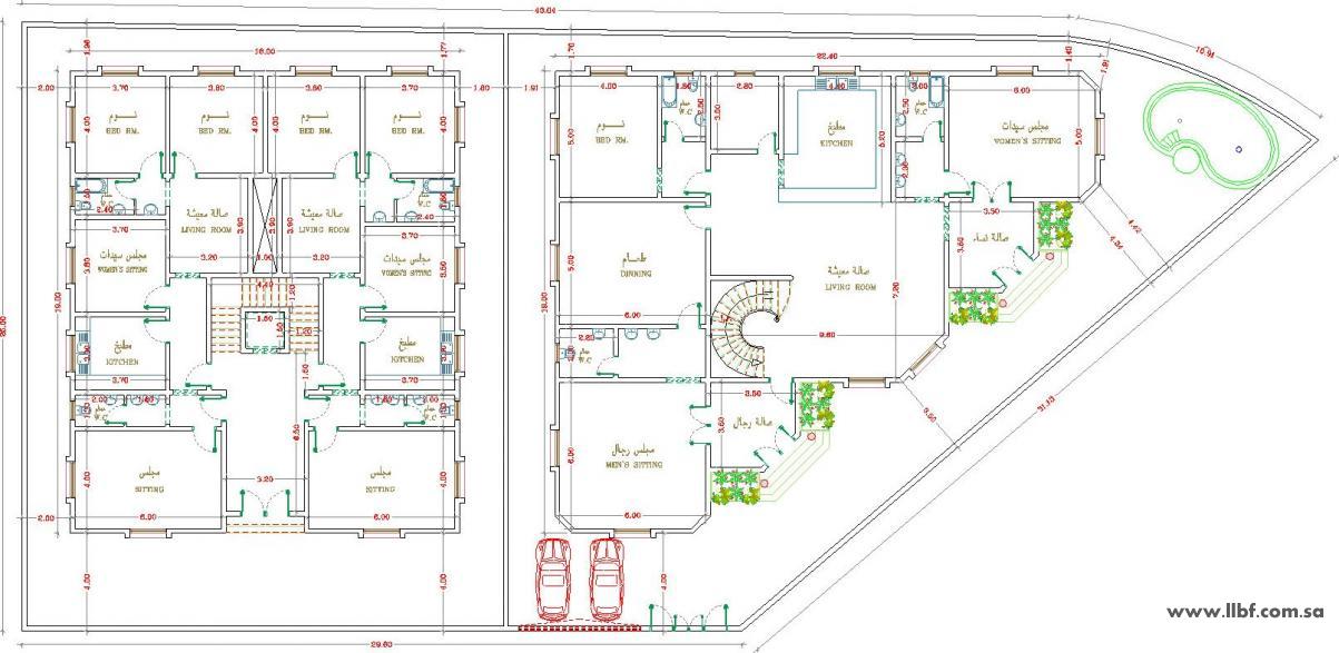
اخواني الكرام كل عام وأنتم بخير
وضعت مخططي بين أيديكم وأجريتم لي مشكورين بعض التعديلات والإقتراحات استفدت منها كثيراً ولكني مازلت في حيرة وخصوصاً وضع المطابخ وصالة الطعام ومخارج الطوارئ
قمت بالتعديل مستفيداً من بعض المقترحات أثابكم الله وهذا هو مخططي قبل التعديل وبعد التعديل
ارجو منكم النظر والتوجيه فرأيكم يهمني فما خاب من استشار دمتم والسلام عليكم ورحمة الله وبركاته.
ملف مرفق 96

ملف مرفق 97

ماجد المحيميد 11-25-2010 09:27 PM


ماجد المحيميد 11-25-2010 09:38 PM


هلا بك

أخي الكريم

ما شاء الله تبارك الله

مخطط بذل فيه شيء من الجهد وهذا أمر واضح فتستاهل كل خير

مساحات ممتازة خاصة بالصالة لكن هذه الجمالية ألغيت عندما تم فصل مجلس النساء عن الصالة بهذا الجدار مع وضع باب
يا أخي مجلس النساء متى سيستخدم ؟؟
لماذا تحرم أسرتك هذه المساحة!

مجلس الرجال أخذ مساحة وقدرها ومجلس النساء كذلك
هنا فعلاً أعطينا الضيوف حوالي 60% من الطابق الأرضي والضيوف يستاهلون أكثر

بالمقابل حرمنا أنفسنا من هذه المساحة ونحن بأمس الحاجة لها

الدرج من الجيد أن يكون دائري مع إزالة الجدار الموازي له كما بالصورة

أود تذكيرك أخي الكريم بأن المساحات المفتوحة بحد ذاتها جمال فاحرص على عدم التقييد بشيء من الجدران التي لا حاجة لها

متمنياً لك التوفيق


ام فهودي 11-26-2010 02:05 AM

"]ماشاء الله لاقوة إلا بالله مخطط رائع ومسكن مبارك إن شاء الله لكن أنا عجبني قبل التعديل لإن المطبخ مكانه انسب قريب من المجالس وصالة المعيشة وغرفة النوم تكون داخلية افضل هذارأيي وانت ادرى بما يصلح لك .

sallag 11-26-2010 11:02 PM

شكر وتقدير
 
1 مرفق
السلام عليكم ورحمة الله وبركاته وبركاته
الشكر كل الشكر والتقدير لاستاذنا ومستشارنا الكبير الاستاذ ماجد المحيميد أبو ابراهيم المقنع جداً بآرئه وانتقاداته الهادفه كما أشكر جميع الاخوه والاخوات الذين مرو على موضوعي وادلو بآرائهم واقتراحاتهم قد استفدت منها كثيراً وأقول للجميع أثابكم الله وأسأله سبحانه وتعالى أن يجزل لكم الأجر والثواب وأخيراً هذا تعديلي الأخير أرجو المزيد من الانتقاد وابداء الرأي وشكراً
تقبلو تحياتي
ملف مرفق 98

sallag 11-29-2010 05:30 PM

لا تنسونا يا جماعة لا غنى عنكم بعد الله

لمسة فنون 11-29-2010 09:09 PM


مرحبا استاذي ..

بصراحه المخطط جيد وعندك مساحه اللهم بارك لك .. ولكن سؤال هل انت محتاج لهذه المساحه

لا تنظر بالوقت الحالي انظر على المدى البعيد .

. دائما يفضل ان نخطط على القريب والبعيد حتى لانندم مستقبلا ونسئل من سبقونا بالبناء ماهي

سلبيات وايجابيات المساحات الكبيره والصغيره ....لنتفادى جميع اخطاء غيرنا ..

كذلك يجب ان نتمتع بكل سم ببيتنا لا نحرم انفسنا ..

الحياة الاجتماعيه والاسريه تغيرت عن السابق وسوف تتغير اكثر واكثر مستقبل ..

لذلك نحط ببالنا ان نعمل البيت لاسرتنا ثم لضيوفنا ..

انا اعمل بجهد لراحة الاسره بجميع احتياجاتها ومتطلباتها لبناء منزل مريح ..

لذلك يمكن الكثير ينتقد تفكري بالنهاية انا صائبه ولكن نحتاج لوقت لتوعية المجتمع وسوف يتذكر كلامي ..

نرجع لتخطيط المنزل انا سيفته عندي وبحاول اعطيك فكرتي وانت لك الحريه بالاختيار .

كمان الشقتين بعمل شوي تخطيط اذا عجبك خذه واذا لم يعجبك اتركه ...

لاني بصراحه جدا مستاءه من الكثير ببناء الشقق وتئجيرها ...للاسف الموجوده بالساحه واكثرها

تخطيط عشوائي يهدف الى الربح العالي مقابل اقل التكاليف والخدمات للعميل وهذا شي مؤلم ..

اعتذر على الاطاله .. وانتظرني ببعض التعديل .. وفقك الله وبارك لك

تحياتي وتقديري

لمسة فنون

sallag 11-29-2010 10:55 PM

اقتباس:

المشاركة الأصلية كتبت بواسطة لمسة فنون (المشاركة 2171)

مرحبا استاذي ..

بصراحه المخطط جيد وعندك مساحه اللهم بارك لك .. ولكن سؤال هل انت محتاج لهذه المساحه

لا تنظر بالوقت الحالي انظر على المدى البعيد .

. دائما يفضل ان نخطط على القريب والبعيد حتى لانندم مستقبلا ونسئل من سبقونا بالبناء ماهي

سلبيات وايجابيات المساحات الكبيره والصغيره ....لنتفادى جميع اخطاء غيرنا ..

كذلك يجب ان نتمتع بكل سم ببيتنا لا نحرم انفسنا ..

الحياة الاجتماعيه والاسريه تغيرت عن السابق وسوف تتغير اكثر واكثر مستقبل ..

لذلك نحط ببالنا ان نعمل البيت لاسرتنا ثم لضيوفنا ..

انا اعمل بجهد لراحة الاسره بجميع احتياجاتها ومتطلباتها لبناء منزل مريح ..

لذلك يمكن الكثير ينتقد تفكري بالنهاية انا صائبه ولكن نحتاج لوقت لتوعية المجتمع وسوف يتذكر كلامي ..

نرجع لتخطيط المنزل انا سيفته عندي وبحاول اعطيك فكرتي وانت لك الحريه بالاختيار .

كمان الشقتين بعمل شوي تخطيط اذا عجبك خذه واذا لم يعجبك اتركه ...

لاني بصراحه جدا مستاءه من الكثير ببناء الشقق وتئجيرها ...للاسف الموجوده بالساحه واكثرها

تخطيط عشوائي يهدف الى الربح العالي مقابل اقل التكاليف والخدمات للعميل وهذا شي مؤلم ..

اعتذر على الاطاله .. وانتظرني ببعض التعديل .. وفقك الله وبارك لك

تحياتي وتقديري

لمسة فنون

السلام عليكم ورحمة الله وبركاتة وبعد
يسرني ويشرفني كثيراً مرورك عل موضوعي وتلك النصائح والتساءلات الجميلة والهادفة والتي لا أخفيك سراً بشعوري وأنا أقرأ هذه الكلمات بأن أمامي شخص متمكن وخبير في هذا المجال والاهم من ذلك أنه قد عاد لي صديقي الصدوق الذي أفتقده منذ زمن وبالنسبة لسؤالك هل احتاج هذه المساحة نعم احتاجها وفي الوقت نفسه ارغب ان يكون الجزء الأخر المستثمر جيد ومريح يلبي طلبات المستأجر لا سيا انه سيجاورني في السكن وأخيراً لا تنسى وعدك مع جزيل الشكر والتقدير أثابكم الله وجعل هذا في ميزان حسناتكم
تقبلوا تحياتي

sallag 11-30-2010 06:49 PM

استا ذنا الكبير ابو ابراهيم
خلاص اعتمد واتوكل على الله
انتظر رايك في التعديل الاخير
علماً بأن الكثير نصحوني باعتماد المخطط
قبل التعديل الاول ونقل درج الفلة للجهه المقابلة
وتبديل المطبخ بمجلس النساء في الشقق والاكتفاء بشباك واحد في غرف النوم
يهمني رأيك لاعدمناك جزاك الله خيراً
تقبل تحياتي

لمسة فنون 12-02-2010 01:50 PM

اخي الفاضل sallag مخططك جدا رائع وعندك

مساحات واسعه اللهم بارك لك ولكن سؤال عن غرفة النوم هل هي خاصه لاعضاء الاسره الخاصه بك ام

هي مخصصه للضيوف .. انتظر ردك

اما الشقتين فتحتاج الى اعادة تخطيط وباذن الله سوف احاول اعطيك الفكره

بتخطيطي ...والمهندس المعماري هو من لديه علم بالتخطيط السليم انا اعطيك فكره فقط...مااني اكاديميه

مختصه... فقط هوايه ممكن اكون صائبه او مخطئه

وفقك الله اخي الفاضل

تحياتي وتقديري

لمسة فنون


الساعة الآن 03:38 PM.

Powered by vBulletin® Version 3.8.4, Copyright ©2000 - 2025, Jelsoft Enterprises Ltd. TranZ By Almuhajir
F.T.G.Y 3.0 BY: D-sAb.NeT © 2011
HêĽм √ 3.1 BY: ! ωαнαм ! © 2010

a.d - i.s.s.w