منتديات للبناء فنون

منتديات للبناء فنون (http://www.llbf.com.sa/vb/index.php)
-   الاستشارات الهندسية (http://www.llbf.com.sa/vb/forumdisplay.php?f=5)
-   -   مقاس الشبابيك في هذا المخطط (http://www.llbf.com.sa/vb/showthread.php?t=497)

عذال العذال 12-18-2010 10:19 PM

مقاس الشبابيك في هذا المخطط
 
1 مرفق
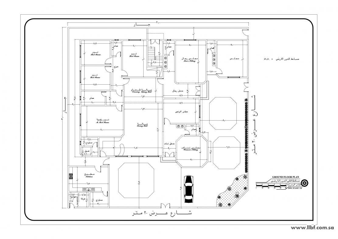
اخوي ابو ابراهيم السلام عليكم ورحمة الله وبركاته

اما بعد :-

ارجو منك ان لاتبخل علينا بنصائحك السديده خصوصا من ناحية الجمال الخارجي لشبابيك الفله وهي

كالتالي كما هو موضح بالمخطط :-

1- الصاله وهي قلب البيت النابض مساحة الواجهه 6.30 متر كيف اصمم ابعاد نافذتها خصوصا اني

ابقي الشباك يبدأ من رصتين بلك الي اعلي تكفي يابو ابراهيم تري اخوك محتاس ابقي الشراحة

من داخل الفله والمنظر الخارجي يكون جميل خصوصا انها مطله علي حديقه ((( ارجو ان لاتاخذ

المقاس الموضح في المخطط علي انه نهائي )))

ماجد المحيميد 12-28-2010 09:08 AM


ماجد المحيميد 12-28-2010 10:06 AM

هلا بك

أخي الكريم

بما أن الصالة مساحتها جيدة على الواجهة فالأفضل أن تكون النوافذ بشكل مستطيل كما تفضلت
من الأرض بارتفاع 20 سم فقط من البلاط وتكون إلى أعلى السقف

عدد النوافذ تكون 3 نوافذ
من الجيد أن تكون النافذة إلى السقف مباشرة دون وجود عتبة أعلى النافذة

أقترح عليك الإطلاع على هذا الموضوع ومشاهدة النوافذ فهذا الموضوع غني بالأفكار


عذال العذال 12-28-2010 06:52 PM

غفر الله لك ونفع بك جميع اخواني المقبلين علي البناء


الساعة الآن 06:18 PM.

Powered by vBulletin® Version 3.8.4, Copyright ©2000 - 2025, Jelsoft Enterprises Ltd. TranZ By Almuhajir
F.T.G.Y 3.0 BY: D-sAb.NeT © 2011
HêĽм √ 3.1 BY: ! ωαнαм ! © 2010

a.d - i.s.s.w