منتديات للبناء فنون

منتديات للبناء فنون (http://www.llbf.com.sa/vb/index.php)
-   المخططات المعمارية (http://www.llbf.com.sa/vb/forumdisplay.php?f=20)
-   -   فضلا رأيكم في هذا المخطط (http://www.llbf.com.sa/vb/showthread.php?t=566)

ابو فهاد 12-29-2010 08:51 PM

فضلا رأيكم في هذا المخطط
 
اخواني الافاضل ارجو اعطائي رأيكم في مخططي علما بأن واجهة البيت 11 متر فقط ( حي امني ) المساحه 18 *50 بارك الله في مجهوداتكم ودمتم بخير

http://www.ii1i.com/uploads6/fafd694523.jpg


http://www.ii1i.com/uploads6/4c26b32dea.jpg

أديم 12-30-2010 09:15 PM

أهلا بك

هذه بعضا من المقترحات

نأمل أن نكون قدمنا شئ يلائم متطلباتك

وفقك الله



http://www.llbf.com.sa/uploads/download.php?img=2439

ابو فهاد 12-30-2010 11:09 PM

اشكر مرورك الكريم
اقدر ملاحظاتك القيمه التي ستؤخذ في الحسبان ان شاء الله
ان امكن تعطيني رأيك في الدرو الثاني
وآسف اذا ثقلت عليك

ابو فهاد 12-30-2010 11:17 PM

الاخت أديم نسيت اخبرك ان البيت له مقدمه بمساحت 200م تقريبا وفي الجهه الخلفية حديقة بنفس المساحة
اكرر شكري وتقديري

ماجد المحيميد 12-30-2010 11:22 PM


هلا بك

أخي الكريم

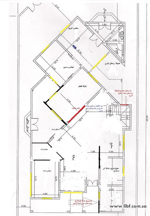
فعلاً مقترحات الأستاذة أديم جيدة بدرجة كبيرة رغم أنها عملت غربلة كبيرة عن المخطط الاساسي وذلك لوجود ملاحظات جوهرية بالمخطط

مثل صالة الطعام فلا يمكن الوصول إليها من المطبخ إلا عن طريق مجلس النساء وهذا الأمر غير مقبول فكيف يتم نقل الطعام أمام الضيوف وأي ضيووووووف النساء

أعتقد أن هذه التعديلات تستحق منا الوقوف عندها والأخذ بها

متمنياً لك أخي الكريم التوفيق

ابو فهاد 12-30-2010 11:31 PM

شاكر مرورك يا ابو ابراهيم وما نستغني عن ملاحظتكم
جزاكم الله خير انت والاخت اديم

ماجد المحيميد 12-30-2010 11:35 PM

http://www.llbf.com.sa/uploads/download.php?img=2448

هلا بك

هذه بعض المقترحات للدور الأول

الغرف الأخيرة من الجيد إلغاء الفراغ اللي بين الغرف بعرض 1.80م
ويتم وضع هذه المساحة لصالح الغرف مع تكبير غرف الملابس

الجناح الرئيسي من الجيد تخصيص غرفة بداخله لا تتجاوز عرض 4م تكون خاصة بالسرير وذلك للهروب من الإزعاج والزوجة تأخذ راحته بالحركة دون إزعاجك عندما تكون نائم
مع ضرورة تكبير وزيادة مساحة غرفة الملابس للجناح الرئيسي أعتقد بأنها غير كافية

بالتوفيق أن شاء الله

أديم 12-30-2010 11:58 PM

تبارك الله رغم غرابة المخطط بزواياه المثلثة

الا أنه ذكي ومتناغم جدا

آمل أن تراعي عدد افراد اسرتك واحتياجاتهم ..

لأنه يبدو متعدد المرافق ..رغم شكله الصغير!!

هذه بعض من الاقتراحات حول الدور الثاني

وحبذا لو عدلت بالمخطط أن تضعه لنا هنا كي نراه في ثوبه الجديد

وفقك الله


http://www.llbf.com.sa/uploads/download.php?img=2451

ابو فهاد 12-31-2010 10:07 AM

بارك الله فيكم جميعا 00 ملاحظات لم تكن في الحسبان
ان شاء الله تشوفون المخطط بعد التعديل
لا اعتقد انني سأجد اناس بكرمكم ورحابت صدوركم
دمتم بخير 00


الساعة الآن 08:39 AM.

Powered by vBulletin® Version 3.8.4, Copyright ©2000 - 2025, Jelsoft Enterprises Ltd. TranZ By Almuhajir
F.T.G.Y 3.0 BY: D-sAb.NeT © 2011
HêĽм √ 3.1 BY: ! ωαнαм ! © 2010

a.d - i.s.s.w