منتديات للبناء فنون

منتديات للبناء فنون (http://www.llbf.com.sa/vb/index.php)
-   المخططات المعمارية (http://www.llbf.com.sa/vb/forumdisplay.php?f=20)
-   -   (مخطط + الواجهة 3d) بانتظار الآراء لا عدمناكم (http://www.llbf.com.sa/vb/showthread.php?t=8702)

عبدالعزيز التويجري 10-30-2013 04:15 PM

(مخطط + الواجهة 3d) بانتظار الآراء لا عدمناكم
 
http://www.llbf.com.sa/uploads/do.php?img=35367

http://www.llbf.com.sa/uploads/do.php?img=35368

http://www.llbf.com.sa/uploads/do.php?img=35369

http://www.llbf.com.sa/uploads/do.php?img=35370

توفي 10-31-2013 12:52 AM

مرحبا
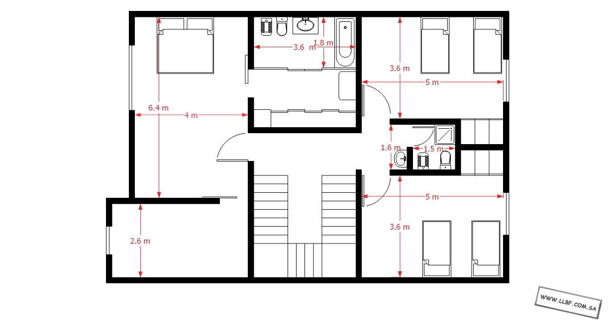
مخططك أنيق ملاحظاتي المتواضعةمافيه تهوية لحمام الأبناء
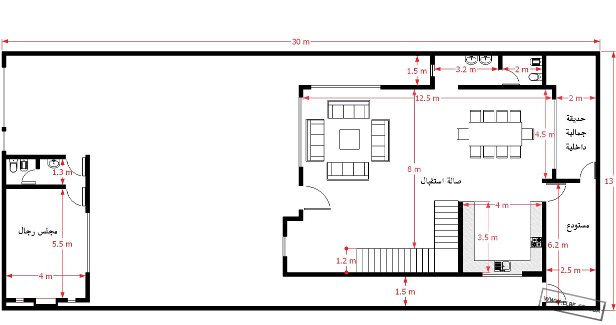
حمام مجلس الرجال يفتح على مدخل المجلس والمدخل صغير وراح يكون الوضع محرج وغير لائق
الغرفة الصغيرة تبع الغرفة الرئيسية إذا تبغاها جلسة افتحها عالرئيسية تعطيك جمال وانشراح أكثر وإذا تبغاها غرفة طفل ضروري يكون لها باب آخر يفتح خارج الغرفة الرئيسية

عبدالعزيز التويجري 10-31-2013 02:26 PM

شكرا توفي على الملاحظات الذكية :

تهوية حمام الأبناء راح يكون عن طريق مروحة الشفط ( دكت ) من الخلف .

الجدار في الغرفة الرئيسية راح يكون جبس بورد فالمساحة راح يكون فيها مرونة

مجلس الرجال أصلا وضعته تحسبا ( لو ) جانا ضيوف مع إني على قناعة إن المناسبت والزيارات صارت بالاستراحات فما أحب ابالغ بالإهتمام به مع إنه لن يستخدم الا في الشهر او الشهرين مرة !

أنا ممتن لمرورك الرائع


الساعة الآن 09:45 AM.

Powered by vBulletin® Version 3.8.4, Copyright ©2000 - 2025, Jelsoft Enterprises Ltd. TranZ By Almuhajir
F.T.G.Y 3.0 BY: D-sAb.NeT © 2011
HêĽм √ 3.1 BY: ! ωαнαм ! © 2010

a.d - i.s.s.w