منتديات للبناء فنون

منتديات للبناء فنون (http://www.llbf.com.sa/vb/index.php)
-   المخططات المعمارية (http://www.llbf.com.sa/vb/forumdisplay.php?f=20)
-   -   مشروعي النهائي بعد التعديل ارجوا النقد والوجيه (http://www.llbf.com.sa/vb/showthread.php?t=886)

sallag 01-23-2011 04:46 AM

مشروعي النهائي بعد التعديل ارجوا النقد والوجيه
 
2 مرفق
السلام عليكم ورحمة الله وبركاته

اخواني الكرام أعضاء وزوار هذا المنتدى الكبير

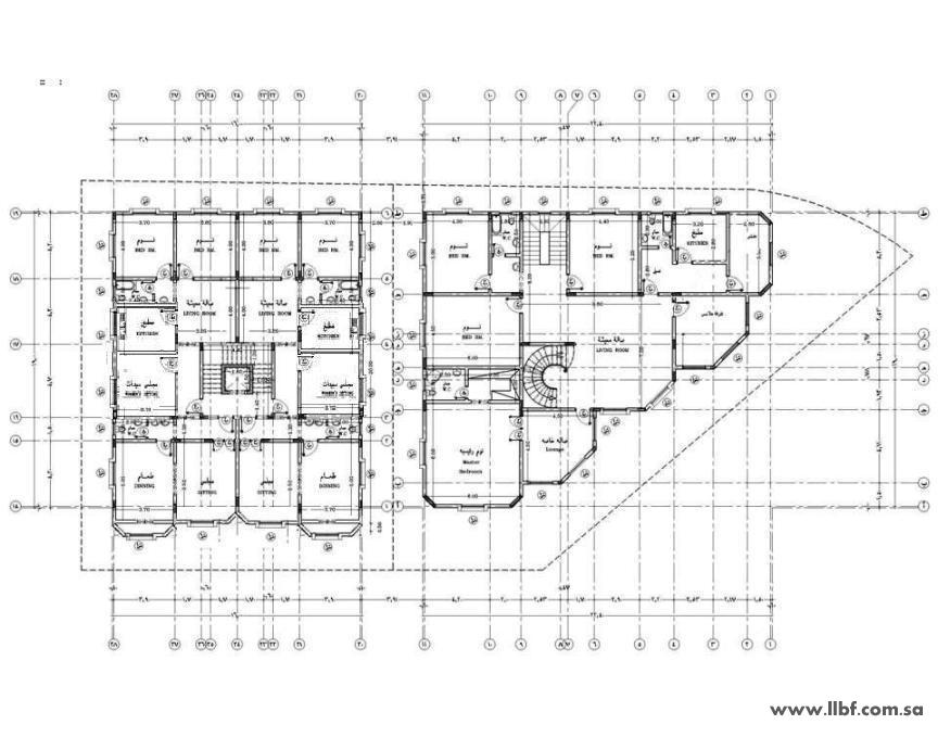
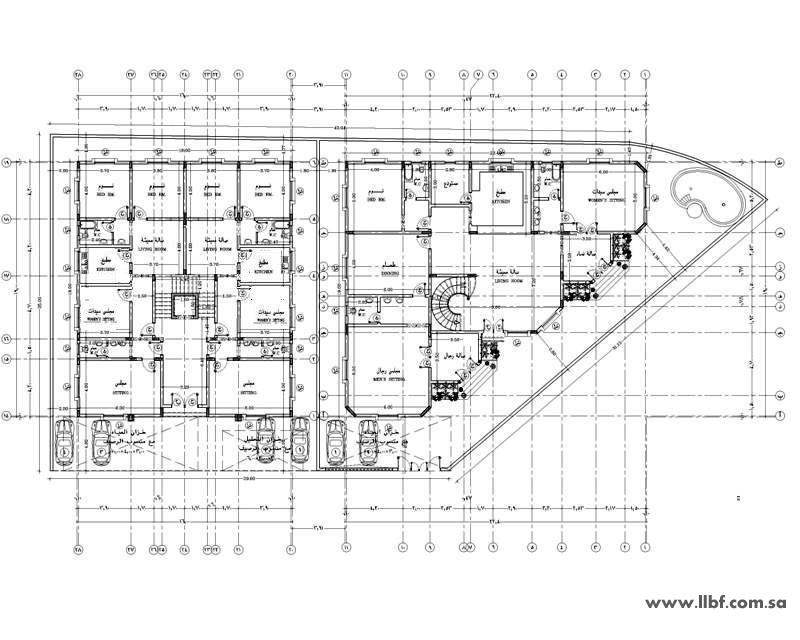
مشروعي بين أيديكم أرجوا التوجيه والنقد جزاكم خيراً

ملف مرفق 153

ملف مرفق 154

sallag 01-23-2011 10:23 AM

السلام عليكم ورحمة الله وبكاتة

سعيد جداً بتواجدكم جميعاً الآن
وسوف أسعد كثيراً بردودكم ومشاركاتكم بموضوعي هذا
وخصوصاً في الدور الأول بعد التعديل وشكراً أثابكم الله جميعاً

ماجد المحيميد 01-23-2011 05:39 PM




ماجد المحيميد 01-23-2011 05:54 PM


هلا بك

أخي الكريم

بالتوفيق أن شاء الله

صالة الطعام (المقلط) في الفيلا الباب في حال كان باب سحاب بمساحة أكبر فهذا أفضل لتصبح صالة الطعام جزء من الصالة

الدور الأول
بعض الغرف يوجد بها نافذتين ويفضل الاكتفاء بنافذة واحدة تحقق المطلوب وتتماشى مع الشكل الخارجي للمبنى

الجناح الرئيسي
عند فتح الباب فهنا يتم مشاهدة الغرفة كاملة أي لا خصوصية عندما يفتح الباب على الصالة

دعواتي لك بالتوفيق


أديم 01-23-2011 11:30 PM

بارك الله لك فيه ويسر لك جميع أمرك

لا مزيد عن ما قاله استاذنا أبو ابراهيم

وفقك الله

sallag 01-24-2011 05:24 PM

صبحكم الله بالخير جميعاً

اشكر جميع الأخوه الذين شاهدو موضوعي وشكر خاص للأستاذ الكبير أبو ابراهيم وكذلك مشرف المخططات المعمارية أديم على ما بذلوه من جهد وسوف أضع جميع ملاحظاتكم وانتقاداتكم في الاعتبار جزاكم الله خير الجزاء جميعاً وأمدكم بالصحة والعافية.


الساعة الآن 08:08 PM.

Powered by vBulletin® Version 3.8.4, Copyright ©2000 - 2025, Jelsoft Enterprises Ltd. TranZ By Almuhajir
F.T.G.Y 3.0 BY: D-sAb.NeT © 2011
HêĽм √ 3.1 BY: ! ωαнαм ! © 2010

a.d - i.s.s.w