منتديات للبناء فنون

منتديات للبناء فنون (http://www.llbf.com.sa/vb/index.php)
-   المخططات المعمارية (http://www.llbf.com.sa/vb/forumdisplay.php?f=20)
-   -   واخيرا مخططي (http://www.llbf.com.sa/vb/showthread.php?t=996)

تميمية 01-29-2011 05:30 AM

واخيرا مخططي
 
السلام عليكم ورحمة الله وبركاته

مساء /صباح الخيرات والمسرات للجميع

ادري اني ازعجتكم ومخططاتي:p

لكن ان شاءالله ماراح انسى معروفكم ووقفتكم :o

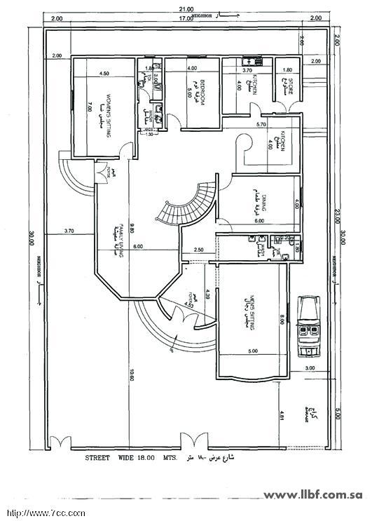
هذا تخطيطي النهائي وراح اعرضة بمشيئة الله للمهندس واناقشة معاكم
(ولاتنسين يا اديم مخططك انتظرة بكل لهفة الله يوفقك ولا يحرمك الاجر)

عطوني اكبر خطأ فيه بس :D الصغار بكفيها ادري انها كثيره

عطوني خطأ كبير ولا صغير انا اثق في افكاركم جزاكم الله خير

اترككم مع المخطط

http://www14.0zz0.com/2011/01/28/14/175085582.jpg

أديم 01-29-2011 06:22 AM

أهلا بك

من المفترض أن المهندس هو خطوتك الأولى...

أجمل شئ بك تبني قناعاتك(:

ولكنه ليس على كل حال!!

مادمتٍ مصرة أن حلمك يكون بهذه الحدود ..فأحيي لك خطوتك

وقد اضفت اليه شئ من المقترحات

الأخضر يكون جدار قصير (تقريبا 80 سم فقط)

بحيث يكون مسطحه لاحقا من رخام ليرتفع قليلا

البني هي الجدران للمجلس بحيث تكون مفتوحة من غير الحاجة للباب

الأحمر باب سحب ..كي يستغل المقلط في غياب الضيوف ..


مدخل الصالة ليس له داعي من وجهي نظري ويكتفى بمدخل النساء..والرجال


هذا رابط لأنواع السلالم التي تفيد لمثل موقع درج منزلكم


http://llbf.com.sa/vb/showthread.php?t=428


ننتظر عودتك بالمخطط هنا من المهندس

دعواتنا لك بالتوفيق

أديــم


http://www.llbf.com.sa/uploads/download.php?img=4156

بسام الخرج 01-29-2011 07:08 AM

أختي تميمية

اسمحي لي ببعض الملاحظات والاستفسارات علما بأني لست متخصصاً :

1: كم مساحة الأرض كاملة ؟ وكم مساحة مسطح البناء ؟

2: يتضح من الرسم أن الأرض على شارع واحد . هل هدا صحيح ؟

3: هل المخطط الدي قمتم برسمه يلبي رغباتكم واحتياجاتكم ؟

أما الملاحظات ( من وجهة نظري القاصرة ) :

1: كثرة المداخل للمنزل فهناك أربع مداخل للمنزل وهدا شئ غير محبب .

2: هل تم رسم مخطط الدور الثاني أو بمعنى آخر هل ربطتم الدور الثاني بمخطط الدور الأول ؟

3: بعد المسافة بين مجلس النساء والمطبخ ( أي الخدمة )

أكتفي بهده الملاحظات لحين الرد على التساؤلات

وتقبلي تحياتي،،،

تميمية 01-29-2011 07:29 AM

اديم اشكر لك اضافتك

الباب السحب انا فكرت يكون من جهة مجلس الرجال

لازم مدخل لاطفالي مدخل النساء والرجال اريد ان تكون مغلقة ونظيفه لودخل ضيف فجأه

ورايك فيه؟؟؟

واتمنى اشوف تخطيطك لي الله يجزاك خير

تميمية 01-29-2011 07:34 AM

اقتباس:
المشاركة الأصلية كتبت بواسطة بسام الخرج http://llbf.com.sa/vb/fnoon/buttons/viewpost.gif
أختي تميمية

اسمحي لي ببعض الملاحظات والاستفسارات علما بأني لست متخصصاً :

1: كم مساحة الأرض كاملة ؟ الف مترتقريبا

وكم مساحة مسطح البناء ؟ 23 تقريبا

2: يتضح من الرسم أن الأرض على شارع واحد . هل هدا صحيح ؟لا متظاهرة على شارعين
لكن نريد بناء ارض والاخرى تكون حديقه للمنزل

3: هل المخطط الدي قمتم برسمه يلبي رغباتكم واحتياجاتكم ؟اكيد وانا ارسمه اتخيل انا فيه واضع كل الضروف والاحتمالات مثل وجود خادمة وضيوف

أما الملاحظات ( من وجهة نظري القاصرة ) :

1: كثرة المداخل للمنزل فهناك أربع مداخل للمنزل وهدا شئ غير محبب .
بس كل مدخل ضروري

2: هل تم رسم مخطط الدور الثاني أو بمعنى آخر هل ربطتم الدور الثاني بمخطط الدور الأول ؟

لا اريد ان اقتنع بالاول والثاني عبارة عن اجنحهودور مسروق

3: بعد المسافة بين مجلس النساء والمطبخ ( أي الخدمة )

هذا شئ مقتنعه فيه وايجابياته اكثر من سلبية البعد

أكتفي بهده الملاحظات لحين الرد على التساؤلات

وتقبلي تحياتي،،،


شكرا لك انتظر عودتك

جزاك الله خير

بندر 01-29-2011 07:55 AM

المخطط يشبه لحد كبير مخططنا والدرج ناوين نحطه دائري والعيب عندي ان الصاله مستطيله وانا لا احبذ ذالك و يوجد لدينا مطبخ خدمه في الصاله صغير والمطبخ الداخلي هو الكبير والاقتراحات سوف استفيد منها لان المخطط لازال على ورق متمنين التوفيق للجميع

تميمية 01-29-2011 09:40 AM

الاخ بندر ياليت تضع مخططك
يمكن نستفيد :)

بندر 01-29-2011 12:18 PM

حاولت اصوره بس لم يكن واضح ولاظبط المهم انه يشبه مخططك والا هم ودي اتلافى عيوب الصاله المستطيله بس كيف لان الارض مستطيله وانا وضعت حديقه خلفيه صغيره تطل عليها الصاله والمطبخ الصغير لانه وسط الصاله

تميمية 01-29-2011 03:26 PM

نفس مشكلتي الصالة طويله !!

ان شاءالله يقترحون علينا اقتراحات لستغلالها

انا فكرت بمستودع ملابس

بسام الخرج 01-29-2011 10:06 PM

تميمية

كل من عندما يضع اقتراح أو حل أو وجهة نظر فإنها تعود للشخص الكاتب

أما الاقتناع والرؤية تعود لصاحب الموضوع ، بمعنى أنا أطرح وجهة نظر قد تكون جوهرية لدي وبالنسبة لصاحب الموظوع تعتبر وجهة نظر خاطئة

على العموم

اسمحي لي بتغيير التفكير قليلاً فسوف أعرض عليكي مخطط يختلف عن مخططك ولكن به نفس الاحتياجات

وبالامكان التغيير عليه


http://www.llbf.com.sa/uploads/download.php?img=4173


مجرد وجهة نظر ....

وللحديث بقية


الساعة الآن 09:49 PM.

Powered by vBulletin® Version 3.8.4, Copyright ©2000 - 2025, Jelsoft Enterprises Ltd. TranZ By Almuhajir
F.T.G.Y 3.0 BY: D-sAb.NeT © 2011
HêĽм √ 3.1 BY: ! ωαнαм ! © 2010

a.d - i.s.s.w