منتديات للبناء فنون

منتديات للبناء فنون (http://www.llbf.com.sa/vb/index.php)
-   المخططات المعمارية (http://www.llbf.com.sa/vb/forumdisplay.php?f=20)
-   -   أرجو إبداء رايكم في مخططي (http://www.llbf.com.sa/vb/showthread.php?t=580)

عروب 12-31-2010 04:21 AM

أرجو إبداء رايكم في مخططي
 
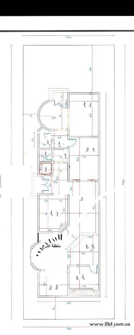
اخواني الافاضل ارجو اعطائي رأيكم في مخططي الأرض 12.5*37.5
هذا نتاج عمل ثلاثة أشهر صممت عددمن المخططات استشرت عدد
من المهندسين والكل مجمع على أن الأرض لا يناسبها إلا الدرج الجانبي
وللأسف أنه لابد أن يكون طوله 4*2.40
وكل مرة أجربه يسكر علي الجهة المقابلة وإذا عدلت بالدور العلوي
صارت المشكلةبالدور السفلي
وبالأخير اقترحت على المهندس الدرج الموضح بالمخطط
لكن اتضح لي نه استهلك مسافة كبيرة جدا ولم اقتنع فيه أبدا
أرجو من الجميع المساعدة بتوجيهي لنوع من الدرج يناسب هذي المساحة
حبيت أوضح إن
*الغرف بالدور العلوي كل وحدة لطفلين سيتم توزيعها إلى نوم وجلسة ومكتب
*غرفة الخادمة سيتم عمل درج خدمة بينها وبين المطبخ لكن المهندس غير في التخطيط بشكل كبير أتمنى توجيهي لدرج يكون عملي وما ياخذ مساحة كبيرة
*المهندس غير بعض الأشياء ما أعجبتني مثل مدخل غرفة النوم وغرفة الغسيل والخادمة وزاد بعض المساحات ونقص أخرى لذلك أرفقت المخطط اليدوي اللي تم تصميم المهندس بناء عليه (وشورو علي هل أغير المهندس؟

http://www.llbf.com.sa/uploads/download.php?img=2721


http://www.llbf.com.sa/uploads/download.php?img=2722

http://www.llbf.com.sa/uploads/download.php?img=2723




أديم 12-31-2010 10:39 AM

ماشاء الله تبارك الله

مخطط جميل جدا

لدي بعض من الملاحظات

الخادمة من الأفضل أن يكون لها درج خدمة صغير ..

ولو استحدث لاحقا بطريقة ذكية ..من غير بناء

(حديد ..أو او حديد مع خشب ) شاهدت اشياء جميلة جدا كهذه الفكرة

المصعد أليس من الأفضل أن يكون بجوار الدرج وإن لم يكن فمن الأفضل مبادلته بحمام النساء

مدخل النساء كبير جدا ..مقارنة بمدخل الرجال

فعلا الدرج مساحته كبيرة ..لكن من الواضح اجبار المساحة على ذلك

..ولديك خيار آخر وهو وضعه بشكل مفتوح(معلق) بشكل شبه دائري مكان صالة المعيشة ..

بحيث لاتخسرين اطلالة الحديقة والاضاءة اذا انتقلت صالة المعيشة مكانه...

وتكون بدايته من مدخل صالة المعيشه(الحالية ) ثم يأخذ في الالتفاف والدوران

أتمنى أن تكون الفكرة وصلت


وفقك الله

عروب 12-31-2010 08:37 PM

شاكر جدا تجاوبك وماذكرته سأخذه بعين الاعتبار درج الخادمة سأحدد له مكان وسيتم إنشائه لاحقا وماتفضلت به بخصوص المصعد
(المصعد أليس من الأفضل أن يكون بجوار الدرج وإن لم يكن فمن الأفضل مبادلته بحمام النساء) سيودي هذا إلى إلغاء غرفة الملابس في الدور العلوي وبإذن الله بعد الاستقرار على شكل وموقع للدرج سأحاول نقله بجواره
(مدخل النساء كبير جدا ..مقارنة بمدخل الرجال) الغايه منه إعطاء شعور باتساع المكان
ا(لدرج يمكن وضعه بشكل مفتوح(معلق) بشكل شبه دائري مكان صالة المعيشة بحيث لاتخسرين اطلالة الحديقة والاضاءة اذا انتقلت صالة المعيشة مكانه...
وتكون بدايته من مدخل صالة المعيشه(الحالية ) ثم يأخذ في الالتفاف والدوران

اتمنى أن تكون الفكرة وصلت) أخي أرفقت لك بعض الصور وأعتقد أنك تقصد الأولى منها ؟ لكن موقع الدرج هنا نهاية البيت يلغي غرفة الغسيل بالدور الأول وهي مرتبطة بدرج الخدمة الذي سينشأ لاحقا من المطبخ
أرجو منك التكرم بالنظر في الصور ومدى عمليتها ؟وهل هي مريحة في الاستخدام ؟وكم تحتاج من مسافة بالتحديد ؟وأين تكون بدايتها؟
متأسف كثرت عليك لكن عندي مشكلة مررة كبيرة في استيعاب مسألة الدرج أنتظر ردك وملاحظاتك على المخطط من جميع الجوانب وملاحظات الاستاذ أبو ابراهيم والجميع لاتحرمونا من ملاحظاتكم وانا متقبل لجميع الانتقادات على المخطط بشكل كامل من توزيع وتناسق ومساحات....

http://www.llbf.com.sa/uploads/download.php?img=3663

http://www.llbf.com.sa/uploads/download.php?img=3664


http://www.llbf.com.sa/uploads/download.php?img=3666

ماجد المحيميد 12-31-2010 08:48 PM


هلا بك

عروب

المخطط جيد ربما يحتاج إلى تعديل الدرج

الصور التي أرفقت الخاصة بالدرج أرشح الأولى وأطلب من المهندس تنفيذها وإن كان هناك هدر بالمساحة لأجل هذا الدرج فلا بأس لا سميا وأن المساحة لديك جيدة

بالتوفيق


أديم 12-31-2010 09:34 PM

مارأيك لو كان ارتداد كما في مدخل الرجال


http://www.llbf.com.sa/uploads/download.php?img=2754

عروب 01-01-2011 02:26 AM

ألف شكر أستاذ أبو ابراهيم ومشرفنا المتميز أديم كنت واثق أني سأجد لديكم ما يثلج صدري وفقكم الله

لمسة فنون 01-01-2011 10:36 PM

مرحبا اختي الفاضله عريب .. بعد اذن اخواني اديم والاستاذ ماجد .. انتبهي لا تضعي

سلم ياخذ مساحه ....ارضك واسعه .... ولكن مشكلتها طولي وماعندك مشكله بتقسيمها

بطريقة مريحه لك ولاسرتك شوفي بنزل مخطط اعتبريه مخططك فعلا مخطط متكامل جدا

ومريح ولكن ممكن لا يصلح للكثير مننا لذلك خلينا نلعب فيه لين نطلع بنتيجه ايش رائيك

نشوف المخطط دققي بتلاحظي توظيف كل المساحات والاستفاده منها

الان بنقارن مخططك والمخطط الجديد وناخذ بعض الافكار بتخطيطه اذا كانت صالحه لنا

http://www.llbf.com.sa/uploads/download.php?img=2970





لمسة فنون 01-01-2011 11:52 PM

http://www.llbf.com.sa/uploads/download.php?img=2972

عروب دعينا نعلق على تخطيطي

نقلت المصعد بجوار الدرج افضل وهو خاص للعائله بالنسبة لوجود حمامين بنظري ماله داعي يكتفى بحمام واحد للضيوف ولكن هذا يرجع لصاحب البيت.. وممكن نعمل حمام اخر للخدمة المتواجدين بالدور الارضي يكون قريب من الصاله وغرفة المعيشه والمطبخ ... انتظر تعليقك وتعليق اخواني اديم وماجد لنطلع بفائده

لك مني كل التقدير

لمسة فنون

عروب 01-03-2011 01:33 AM

اقتباس:

المشاركة الأصلية كتبت بواسطة لمسة فنون (المشاركة 3459)
http://www.llbf.com.sa/uploads/download.php?img=2972

عروب دعينا نعلق على تخطيطي

نقلت المصعد بجوار الدرج افضل وهو خاص للعائله بالنسبة لوجود حمامين بنظري ماله داعي يكتفى بحمام واحد للضيوف ولكن هذا يرجع لصاحب البيت.. وممكن نعمل حمام اخر للخدمة المتواجدين بالدور الارضي يكون قريب من الصاله وغرفة المعيشه والمطبخ ... انتظر تعليقك وتعليق اخواني اديم وماجد لنطلع بفائده

لك مني كل التقدير

لمسة فنون


أشكرك لمسة فنون على هذي اللمسات الرائعة والجهد الواضح أأوافقك تماما بأنه يكفي حمام واحد للضيوف وكذلك أعتقد مجلس واحد لكن أخشى المجازفة:confused:
المصعد مكانه جدا مناسب وأعجبني كثير لكن بالنسبة للدرج لم يتضح لي الشكل الذي اخترتيه لهذاالمخطط (ارجو التكرم بتوضيحه بصورة أو حتى رسم توضيحي)وباقي التعديلات اضافت تناسق أشكرك عليها وسيتم العمل على تعديل المخطط بناء عليها
وننتظر تعليق الأخت أديم والاستاذ ابو ابراهيم

شاكر تفاعلك

عروب 01-03-2011 02:10 AM

اقتباس:

المشاركة الأصلية كتبت بواسطة أديم (المشاركة 3193)
ماشاء الله تبارك الله

مخطط جميل جدا

لدي بعض من الملاحظات

الخادمة من الأفضل أن يكون لها درج خدمة صغير ..

ولو استحدث لاحقا بطريقة ذكية ..من غير بناء

(حديد ..أو او حديد مع خشب ) شاهدت اشياء جميلة جدا كهذه الفكرة[
color
=darkred][/color]

المصعد أليس من الأفضل أن يكون بجوار الدرج وإن لم يكن فمن الأفضل مبادلته بحمام النساء

مدخل النساء كبير جدا ..مقارنة بمدخل الرجال

فعلا الدرج مساحته كبيرة ..لكن من الواضح اجبار المساحة على ذلك

..ولديك خيار آخر وهو وضعه بشكل مفتوح(معلق) بشكل شبه دائري مكان صالة المعيشة ..

بحيث لاتخسرين اطلالة الحديقة والاضاءة اذا انتقلت صالة المعيشة مكانه...

وتكون بدايته من مدخل صالة المعيشه(الحالية ) ثم يأخذ في الالتفاف والدوران

أتمنى أن تكون الفكرة وصلت


وفقك الله

أشكرك أختي أديم على ملاحظاتك وتعليقك
أنا الآن أعمل على تعديل المخطط وأحب لو تنزلين صورة لدرج الخادمة الذي تقترحينه حتى يكون عندي تصور عنه لعرضه على من سينفذ الدرج ويمكن أنقص من مساحة المطبخ الداخلي لأن سألغي الدرج الموضح بالمخطط السابق
انتظر تكرمك بالرد


الساعة الآن 06:52 AM.

Powered by vBulletin® Version 3.8.4, Copyright ©2000 - 2025, Jelsoft Enterprises Ltd. TranZ By Almuhajir
F.T.G.Y 3.0 BY: D-sAb.NeT © 2011
HêĽм √ 3.1 BY: ! ωαнαм ! © 2010

a.d - i.s.s.w