منتديات للبناء فنون

منتديات للبناء فنون (http://www.llbf.com.sa/vb/index.php)
-   المخططات المعمارية (http://www.llbf.com.sa/vb/forumdisplay.php?f=20)
-   -   هذا مخططي وارجو ابداااااء الراي (http://www.llbf.com.sa/vb/showthread.php?t=916)

m.m.b 01-25-2011 07:21 AM

هذا مخططي وارجو ابداااااء الراي
 
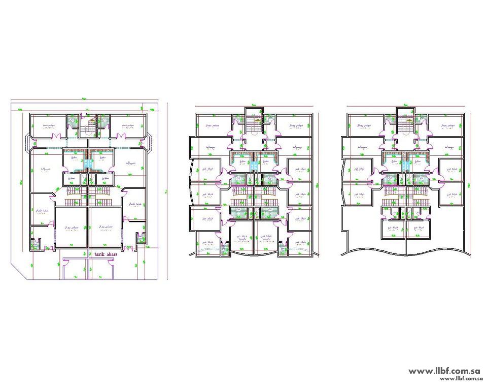
ارجو من الاخوه والاخوات الكرام المشاركه في ارائهم حول هذا المخطط
علما ان مساحه الارض 750 اي 25 على الشارع و30 عمق

وهو عباره عن دبلكسين متلاصقه كل دبلكس مكون من دور ونص + شقه مسروقه + شقه في السطح .....

http://www.llbf.com.sa/uploads/download.php?img=4034
علما ان الارض على شارعين (زاويه) ومدخل الشقق من الخلف

لا استغني عن اراأكم ونصائحكم ...
تقبلوا تحياتي

أديم 01-25-2011 11:14 AM

أهلا بك

الفكرة من ظاهرها ..تبارك الله..ذكية جدا ومستغل فيها كل جزء من المساحة

لكن هل من الممكن أن تدرج لنا الصورة هنا كل مرفق على حدة بشكل أوضح

لأن الصورة معتمة والكتابة غير واضحة بالشكل المطلوب

بالتوفيق

أديم

ماجد المحيميد 01-25-2011 06:49 PM


هلا بك

أخي الكريم

أحييك على هذا المخطط والذي تم توظيف جميع المساحات بشكل مناسب إضافة إلى عمل الواجهات بشكل جيد


صالة الطعام
بالدور الأرضي من الجيد أن تكون متصلة مع الصالة وبينهم باب سحاب لتكون الطعام جزء من الصالة وهذا يحقق الشيء الكثير لقلب المنزل (الصالة)

شخصياً أرى منطقية فتح مجلس النساء أيضاً على الصالة بشكل دائم

عند التنفيذ أحرص على تحقيق الفصل التام للفلتين وذلك بوضع فاصل تمدد 2 سم على أن تكون الجدرن الخارجية بين الفلتين بعرض 20 سم وذلك لفاعلية عزل الصوت

بالتوفيق أن شاء الله


m.m.b 01-26-2011 08:47 AM

اشكركم على الرد

وسوف اضع ملاحظاتكم بعين الاعتبار

واتمنى لكم وللجميع التوفيق والنجاح

as7163 09-11-2015 04:07 AM

السلام عليكم

هل من الممكن أن تدرج لنا صورة للمخطط أوضح و جزاك الله خير ....

تركواز 09-13-2015 07:04 PM

المخطط ماشالله فعلا جميل و عملي و ملاحظتي الوحيده هي عدم تخصيص دورات مياه لغرف النوم الرئيسيه في الدوبلكسات


الساعة الآن 11:26 PM.

Powered by vBulletin® Version 3.8.4, Copyright ©2000 - 2025, Jelsoft Enterprises Ltd. TranZ By Almuhajir
F.T.G.Y 3.0 BY: D-sAb.NeT © 2011
HêĽм √ 3.1 BY: ! ωαнαм ! © 2010

a.d - i.s.s.w